

- Prix
- 196 761 €
Maison neuve • 11 rue Foch (95)
- Nom et prix
- Projet de construction d'une maison 115 m² avec terrain à SAINT-BRICE-SOUS-FORET (95) • 196 761 €
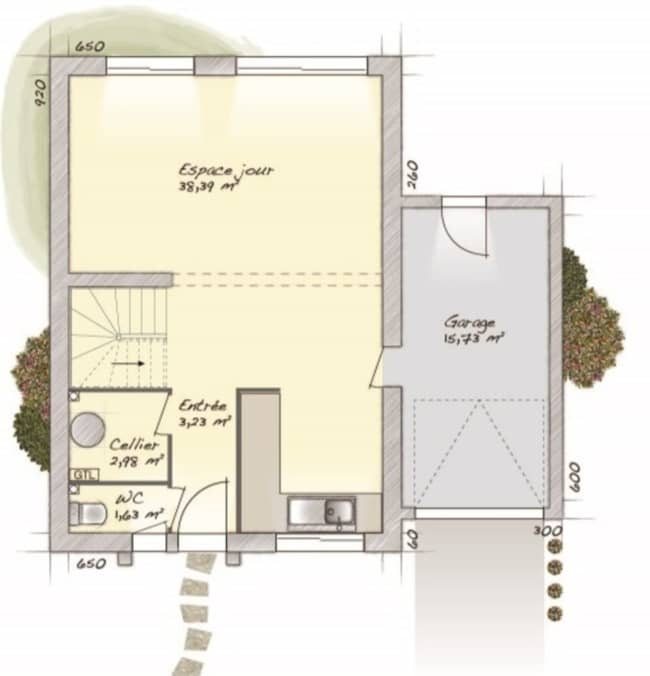
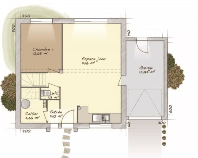
A SAINT-BRICE-SOUS-FORET sur un terrain de 620 m², MAISONS SESAME vous propose de réaliser cette maison neuve d'une surface de 115 m² habitables avec 5 chambres. Le modèle CRISTAL 115 est une maison moderne de 115 m², offrant un agencement fonctionnel et une architecture contemporaine. Au rez-de-chaussée, une chambre, idéale pour un bureau de télétravail ou une chambre d'amis, ainsi qu'un cellier pratique pour le rangement sont présents. Un WC est également à ce niveau pour plus de confort. À l’étage, 4 chambres spacieuses et une salle de bain avec baignoire et fenêtre complètent l’aménagement, créant un espace familial chaleureux et fonctionnel. La maison CRISTAL 115, avec son design moderne, répond aux besoins d’une famille recherchant confort, praticité et un espace dédié au télétravail. MAISONS SÉSAME vous propose les prestations suivantes : - Plans des maisons modulables et adaptables selon vos besoins et les spécificités de votre terrain - Large choix de systèmes de chauffage performants et économes en énergie - Sélection de matériaux de qualité garantissant confort et durabilité - Accompagnement sur-mesure pour la recherche et l’acquisition de votre terrain - Construction conforme à la réglementation en vigueur et à la norme RE2020 - Maisons certifiées NF HABITAT, gage de qualité, de performance et de confort Informations du terrain : -Plat et clôturé -Très belle façade -Quartier très recherché "Le Clos du Château" -Très rare -Environnement d'exception -Idéal pour deux maisons ou investisseur Demandez une étude gratuite et personnalisée de votre projet de construction ! Étude gratuite de votre projet de construction ! De nombreux terrains disponibles dans votre secteur. Informations légales : Maisons Sésame, constructeur de maisons individuelles, propose une sélection de terrains en collaboration avec ses partenaires fonciers, sous réserve de disponibilité. Il n’agit pas en tant que mandataire pour la vente de ces terrains. Nos maisons, certifiées NF Habitat et conformes à la réglementation thermique en vigueur, vous garantissent un habitat durable et économe en énergie. Découvrez un large choix de modèles adaptés aux besoins de toute la famille. Informations tarifaires : Les prix indiqués sont donnés à titre indicatif et incluent les frais annexes hormis les frais de notaire. Les visuels et prix présentés sont non contractuels. Pour plus de détails, consultez nos conditions en agence. N° ORIAS IOBSP 13007108 – RCS Versailles 388 867 426. Les informations sur les risques auxquels ce bien est exposé sont disponibles sur le site Géorisques : www.georisques.gouv.fr Cette annonce a été créée et diffusée avec le logiciel VITAHOME. Contactez Jeremy DEBERLES au 06 23 27 99 34 ou au 01 84 29 34 10 (Maisons Sésame - Agence de Baillet en France).











