

- Prix
- 598 211 €
Maison neuve • Palaiseau (91)
- Nom et prix
- Terrain à bâtir Palaiseau (91120) • 598 211 €
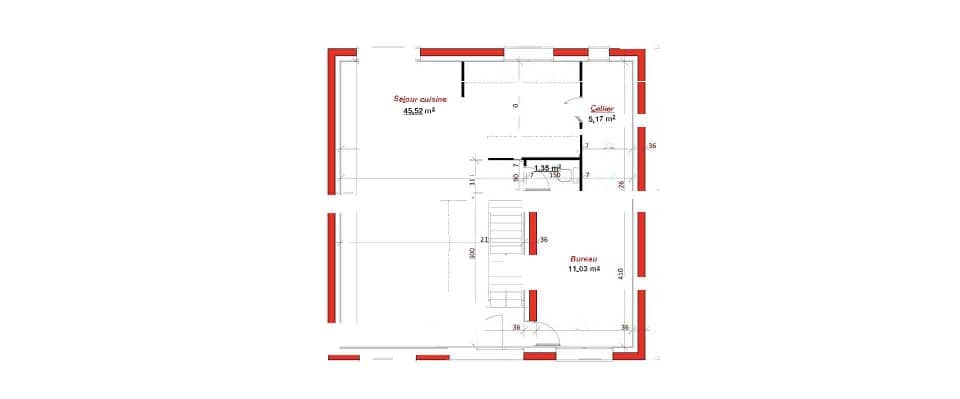
Igny : maison T6 (117 m²) en vente IDÉALEMENT SITUÉE - MAISON 6 PIÈCES NEUVE À vendre à 16 km de Paris, notre agence Maisons Balency La Ville-du-Bois est heureuse de vous proposer cette maison de 6 pièces de 117 m² sur sous sol sur un terrain 500 m² env avec vue panoramique idéalement située dans Igny (91430). Palaiseau a moins de 100 m!! C'est une maison comprends une suite parentale de de plain-pied. Son intérieur comporte quatre chambres, une cuisine et deux salles de bains, une magnifique pièce de vie de plus de 54m² avec des baies vitrées orientées au sud et a l'ouest. Garage en sous sol La maison se situe dans un secteur recherché. Il y a tous les types d'écoles à moins de 10 minutes à pied, tout comme une structure d'accueil pour la petite enfance. Niveau transports en commun, on trouve la station de RER Igny (ligne C) ainsi que la gare Igny juste à côté. Il y a deux tennis, des commerces, un supermarché, quatre boulangeries, un bureau de poste et trois épiceries à quelques minutes à peine. Son prix de vente est de 598 211€. ( hors frais de notaires prévoir env 25 000€), hors décoration, revêtements et adaptations aux sols éventuelles), branchements raccordements, enlèvements des terres compris Tous nos plans sont personnalisables sur mesure Maison à très basse consommation, Réalisation en brique de terre cuite, isolation intérieure renforcée bio ressourcée, pompe à chaleur, plancher chauffant, domotique... toutes assurances comprises ' dommage ouvrage'..., Frais d'architecte inclus Contactez votre conseiller Jean Jacques des maisons BALENCY agence de la ville du bois au 07 77 16 46 73 ou au 01 64 49 21 13












