

- Prix
- 645 000 €
Maison neuve • Antony (92)
- Nom et prix
- Terrain à bâtir Antony (92160) • 645 000 €
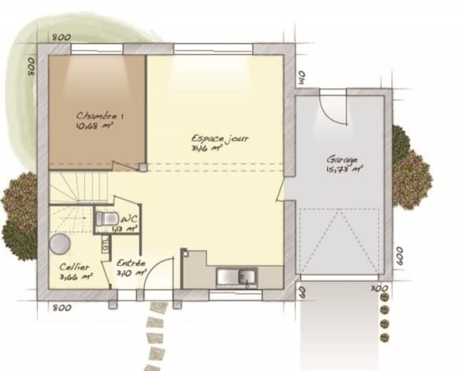
VENTE : maison de 5 pièces (96 m²) à Antony MAISON 5 PIÈCES NEUVE À proximité du RER B (10 min de Paris), nous vous présentons à vendre à Antony (92160), cette maison de 5 pièces de 96 m² et de 457 m² de terrain. C'est une maison de 2 niveaux. Elle est composée de quatre chambres, d'une cuisine et d'une salle de bains. Cette maison est neuve. Tous les types d'écoles (maternelle, élémentaire et secondaire) sont implantés à moins de 10 minutes à pied, tout comme huit crèches. Côté transports, il y a la ligne de RER B (Antony) juste à côté. On trouve une bibliothèque, un bassin de natation, des commerces, des boulangeries, trois supermarchés, des épiceries et une poissonnerie à quelques minutes du bien. Elle est à vendre pour la somme de 645 000 €. Contactez notre agence (Christophe MONTANIER : 06-10-23-51-22) pour toute question sur la maison, sur les modalités de vente ou sur les démarches à suivre. Maisons Balency Saint-Maur-des-Fossés est là pour vous accompagner dans tous vos projets immobiliers.











