

- Prix
- 254 957 €
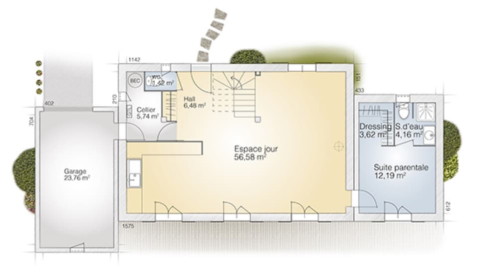
Maison neuve • Elne (66)
- Nom et prix
- Terrain à bâtir () • 254 957 €
L'ECLAIRCIE est une belle maison contemporaine qui saura vous séduire par son habitat lumineux grâce à ses grandes ouvertures. De par ses volumes intéressants, ce plain-pied de 85 m² composé d'une grande pièce de vie ouvert sur une cuisine attenante au garage, et d'un coin nuit avec trois chambres et d'une grande salle de bain permet à tous les membres de la famille de disposer de l'espace nécessaire à votre confort. N'attendez plus et contactez nous pour construire votre projet de vie dans le Tarn, l'Aude, L'Hérault, la Haute-Garonne ainsi que les Pyrénées Orientales.












