

- Prix
- 495 700 €
Maison neuve • Saintry-sur-Seine (91)
- Nom et prix
- Terrain à bâtir () • 495 700 €
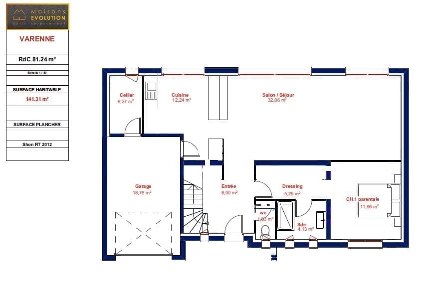
SAINTRY SUR SEINE: Terrain de 920 m² à vendre Virginie au 06.19.89.86.67 est ravie de vous proposer cette maison de 6 pièces de 141 m² bénéficiant d'un emplacement d'exception. Son intérieur inclut cinq chambres, une cuisine et deux salles de bains. Niveau transports en commun, il y a la ligne de RER D à moins de 10 minutes en voiture. On trouve une bibliothèque, une boulangerie, un bureau de poste et une supérette à proximité de la maison. Son prix de vente est de 495 700 €. Prenez contact avec notre agence (BARRIONUEVO Virginie : 06-19-89-86-67) pour obtenir de plus amples informations sur le bien ou sur les modalités de vente. Maisons Evolution Savigny-sur-Orge est là pour vous accompagner à toutes les étapes de l'achat.