

- Prix
- 339 000 €
Maison neuve • Meaux (77)
- Nom et prix
- Terrain à bâtir Meaux (77100) • 339 000 €
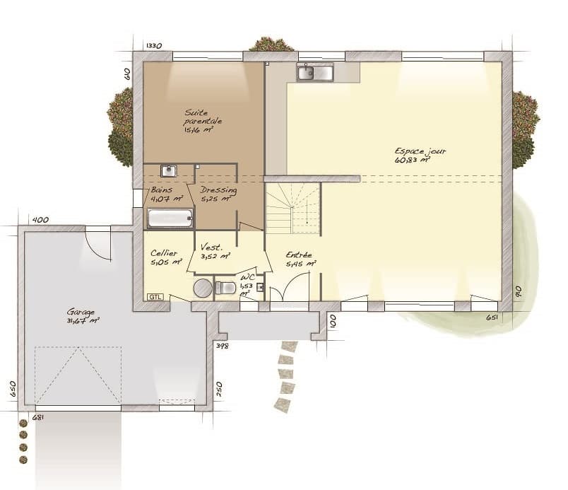
🏡 À SAISIR : Maison neuve à prix attractif avec prestations de qualité dans le quartier de l'hôpital de Meaux. Maisons Balency, constructeur reconnu du groupe Hexaom, vous propose cette maison neuve alliant prix accessible, confort et prestations soignées. 📍 Emplacement idéal : Quartier résidentiel calme, proche des écoles, commerces et transports. 🏠 Un projet optimisé pour votre confort : -109 m² habitables, agencement intelligent -Jusqu'à 4 chambres lumineuses dont une suite parentale -Séjour spacieux ouvert sur une cuisine moderne -Salle de bain personnalisable (baignoire ou douche) -Terrain de 470 m², avec possibilité de terrasse ✨ Prestations Maisons Balency : ✔ Construction de qualité, conforme RE 2020 (économies d'énergie) ✔ Isolation haute performance, menuiseries double vitrage ✔ Personnalisation des finitions et équipements 💰 Prix à partir de 339 000 € 📞 Contactez Alexis au 06.63.28.91.79 pour plus d'infos et personnaliser votre projet !











