

- Prix
- 319 000 €
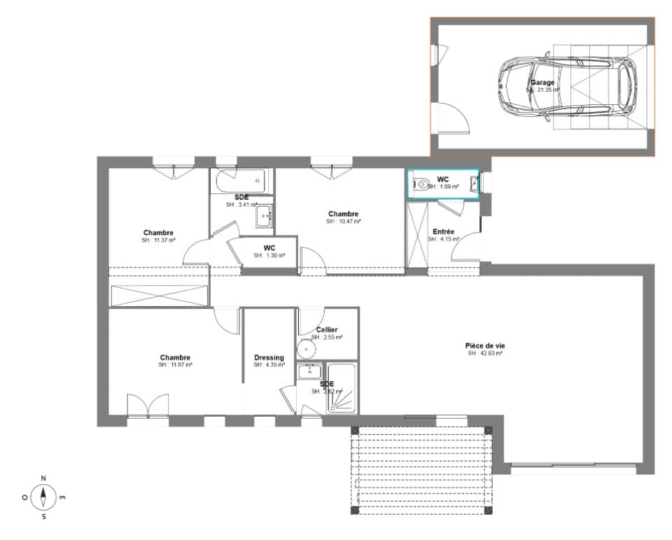
Maison neuve • Vergèze (30)
- Nom et prix
- Terrain à bâtir Vergèze (30310) • 319 000 €
Maison de 100 m² proposée ici sur 310 m² de terrain, sur les hauteurs de Vergèze. Elle dispose de 4 chambres, une salle de bain équipée, 2 wc, lumineux séjour avec cuisine ouverte, et un cellier avec accès au garage. RE2020 + GARANTIES CCMI COMPRISES. Prenez contact avec notre agence Maisons de Manon Caissargues au 04 66 36 00 24 - 06 51 66 80 38 pour plus d'informations. Il y a l'École Maternelle les Petits Loups à moins de 10 minutes. Côté transports en commun, on trouve neuf gares à moins de 10 minutes en voiture. L'autoroute A9 et la nationale N113 sont accessibles à moins de 8 km. Il y a une bibliothèque, un tennis et une boucherie-charcuterie à proximité.











