

- Prix
- 270 274 €
Maison neuve • Trilbardou (77)
- Nom et prix
- Terrain à bâtir () • 270 274 €
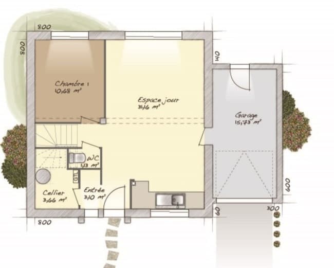
Maison de 5 pièces (80 m²) en vente à Trilbardou MAISON 5 PIÈCES NEUVE - PROCHE DE MONTREUIL À vendre : à côté de la gare d'Esbly (Paris à 30 min avec le Transilien P), ayez le coup de coeur pour cette maison de 5 pièces de 80 m² à Trilbardou (77450). Elle dispose de trois chambres, d'une cuisine et d'une salle de bains. Le terrain du bien est de 330 m². Cette maison compte 2 niveaux. Elle est neuve. L'École Primaire Simonne Debeaupuis est implantée à moins de 10 minutes à pied. Niveau transports en commun, on trouve la station de RER Chessy-Marne-La-Vallée (ligne A) ainsi que cinq gares à moins de 10 minutes en voiture. Il y a un tennis à quelques minutes. Son prix de vente est de 270 274 €. N'hésitez pas à prendre contact avec notre agence (Sébastien DARTEVELLE : 06-24-63-58-60) pour toute information sur cette maison. Maisons Balency Dammartin-en-Goële est là pour vous accompagner à toutes les étapes de l'achat.











