

- Prix
- 755 000 €
Maison neuve • Sucy-en-Brie (94)
- Nom et prix
- Terrain à bâtir () • 755 000 €
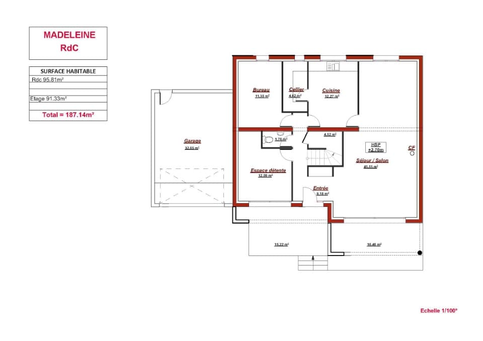
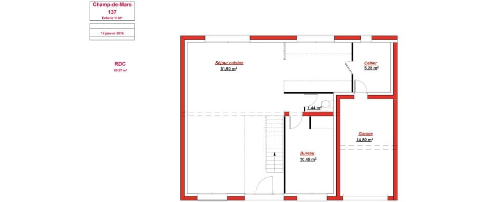
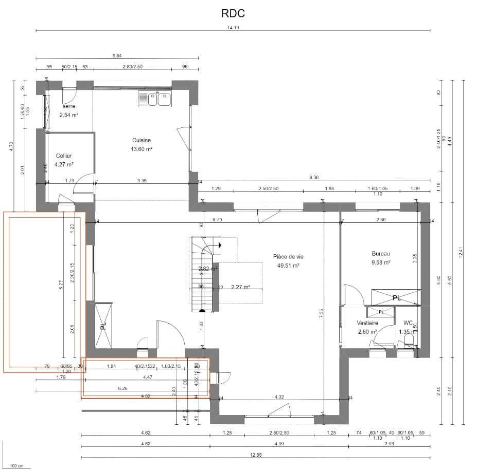
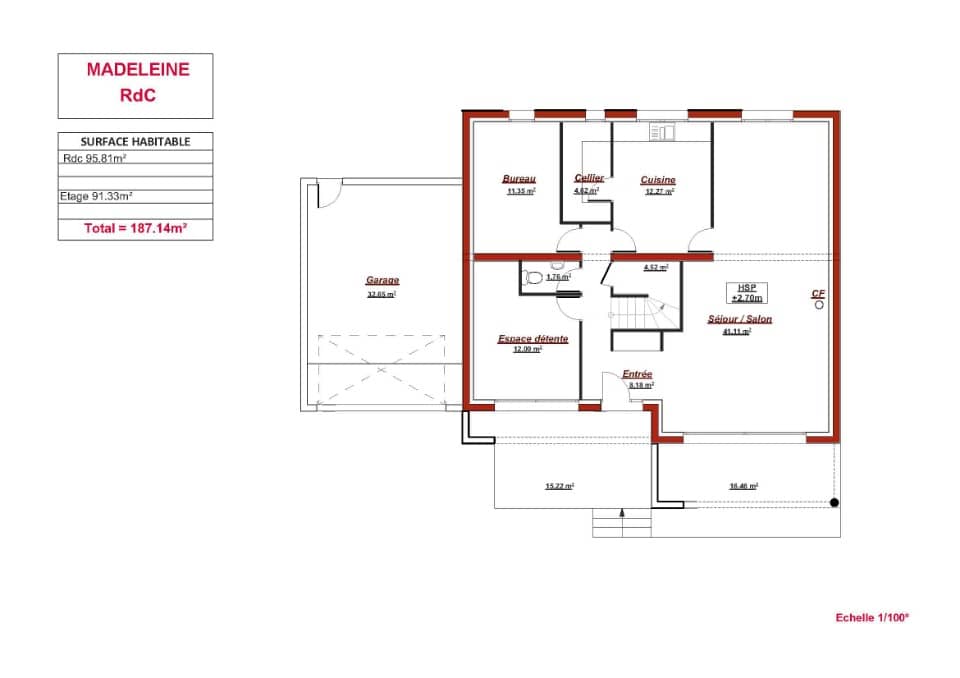
Sucy-en-Brie : maison T8 (175 m²) à vendre MAISON 8 PIÈCES NEUVE En vente : à côté du RER A (station Sucy-Bonneuil, 20 min de Paris), nous sommes ravis de vous proposer cette maison de 8 pièces de 175 m² et de 400 m² de terrain à Sucy-en-Brie (94370). Elle inclut quatre chambres, une cuisine et trois salles de bains. Il s'agit d'une maison de 2 niveaux. Elle est neuve. Des écoles de tous types (de la maternelle au lycée) sont implantées à moins de 10 minutes à pied, tout comme trois structures d'accueil pour la petite enfance. Niveau transports en commun, on trouve quatre lignes de RER (A, D, E et C) ainsi que 22 gares à moins de 10 minutes en voiture. Il y a une bibliothèque, un bassin de natation, des commerces, des boulangeries, trois supermarchés, un bureau de poste et une épicerie à proximité de la maison. 2 marchés animent les environs. Elle est proposée à l'achat pour 755 000 €. Contactez Franck THAREAU (01-48-81-08-79) pour plus d'informations sur cette maison.










