

- Prix
- 171 335 €
Maison neuve • 12 rue Jean Mermoz (95)
- Nom et prix
- Projet de construction d'une maison 122 m² avec terrain à FRANCONVILLE (95) • 171 335 €
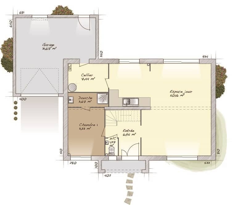
A FRANCONVILLE sur un terrain de 350 m², MAISONS SESAME vous propose de réaliser cette maison neuve d'une surface de 122 m² habitables avec 5 chambres. Le modèle ATRIA 125 est une maison à étage de 122 m², offrant un espace de vie généreux et bien agencé pour une famille moderne. Le rez-de-chaussée comprend une chambre, qui peut également être utilisée comme bureau pour le télétravail. Vous y trouverez également une belle entrée, ainsi qu'une cuisine fermée pour plus d'intimité et de confort. Ce niveau dispose aussi d’une salle de bains et d’un WC séparé, optimisant l’espace de manière pratique. À l'étage, vous découvrirez 4 chambres spacieuses, accompagnées d'une salle de bains supplémentaire, garantissant confort et fonctionnalité pour toute la famille. Le modèle ATRIA 125 combine espace, confort et praticité pour répondre aux besoins de votre famille. MAISONS SÉSAME vous propose les prestations suivantes : - Plans des maisons modulables et adaptables selon vos besoins et les spécificités de votre terrain - Large choix de systèmes de chauffage performants et économes en énergie - Sélection de matériaux de qualité garantissant confort et durabilité - Accompagnement sur-mesure pour la recherche et l’acquisition de votre terrain - Construction conforme à la réglementation en vigueur et à la norme RE2020 - Maisons certifiées NF HABITAT, gage de qualité, de performance et de confort Informations du terrain : - Gare 10 min à pieds Ligne H - Commerces et écoles primaire / maternelle à pieds - Quartier pavillonnaire Demandez une étude gratuite et personnalisée de votre projet de construction ! Étude gratuite de votre projet de construction ! De nombreux terrains disponibles dans votre secteur. Informations légales : Maisons Sésame, constructeur de maisons individuelles, propose une sélection de terrains en collaboration avec ses partenaires fonciers, sous réserve de disponibilité. Il n’agit pas en tant que mandataire pour la vente de ces terrains. Nos maisons, certifiées NF Habitat et conformes à la réglementation thermique en vigueur, vous garantissent un habitat durable et économe en énergie. Découvrez un large choix de modèles adaptés aux besoins de toute la famille. Informations tarifaires : Les prix indiqués sont donnés à titre indicatif et n’incluent pas les frais annexes (frais de notaire, raccordements, etc.). Les visuels et prix présentés sont non contractuels. Pour plus de détails, consultez nos conditions en agence. N° ORIAS IOBSP 13007108 – RCS Versailles 388 867 426. Les informations sur les risques auxquels ce bien est exposé sont disponibles sur le site Géorisques : www.georisques.gouv.fr Cette annonce a été créée et diffusée avec le logiciel VITAHOME. Contactez Mihail AZAROV au 06 40 32 23 45 ou au 01 84 29 33 10 (Maisons Sésame - Agence de Cormeilles en Parisis).












