

- Prix
- 289 660 €
Maison neuve • Senlis (60)
- Nom et prix
- Terrain à bâtir Senlis (60300) • 289 660 €
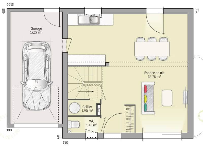
Maison RE 2020 , située à Villeneuve sur Verberie , sur un terrain de 559m² . 3 chambres avec rangements intégrés ,salle d eau équipée , cellier , séjour traversant , garage accolé . Nombreuses prestations incluses : Carrelage 45x45 , packs alarme et domotique , choix du type de chauffage , normes RE 2020 .. Tout nos modèles sont personnalisables et modifiables . Profitez également d un accompagnement intégral et personnalisé : Recherche du financement , visite technique du terrain ,gestion administrative . Rendez vous en agence ou à votre domicile . VERON ANTHONY /07/77/85/58/88/











