

- Prix
- 326 274 €
Maison neuve • Pomponne (77)
- Nom et prix
- Terrain à bâtir () • 326 274 €
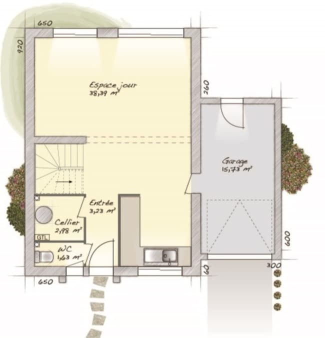
VENTE d'une maison T7 (102 m²) à Pomponne PROCHE DE PARIS - MAISON 7 PIÈCES NEUVE À vendre : au pied de la gare de Lagny-Thorigny (Paris à 25 min par le Transilien P), nous vous proposons cette maison de 7 pièces de 102 m² et de 400 m² de terrain à Pomponne (77400). Il s'agit d'une maison de 2 niveaux. Son intérieur comporte cinq chambres, une cuisine et deux salles de bains. La maison est neuve. L'École Primaire les Cornouillers est implantée à moins de 10 minutes à pied, tout comme une crèche. Niveau transports en commun, il y a le RER A, E et B ainsi que six gares à moins de 10 minutes en voiture. On trouve un tennis et trois commerces à proximité. Il est à vendre pour la somme de 326 274 €. N'hésitez pas à prendre contact avec notre agence (Sébastien DARTEVELLE : 06-24-63-58-60) pour plus de renseignements sur cette maison. Maisons Balency Dammartin-en-Goële est là pour vous accompagner dans toutes vos démarches.












