

- Prix
- 754 000 €
Maison neuve • Vitry-sur-Seine (94)
- Nom et prix
- Terrain à bâtir () • 754 000 €
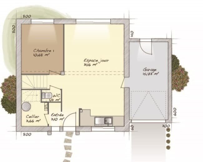
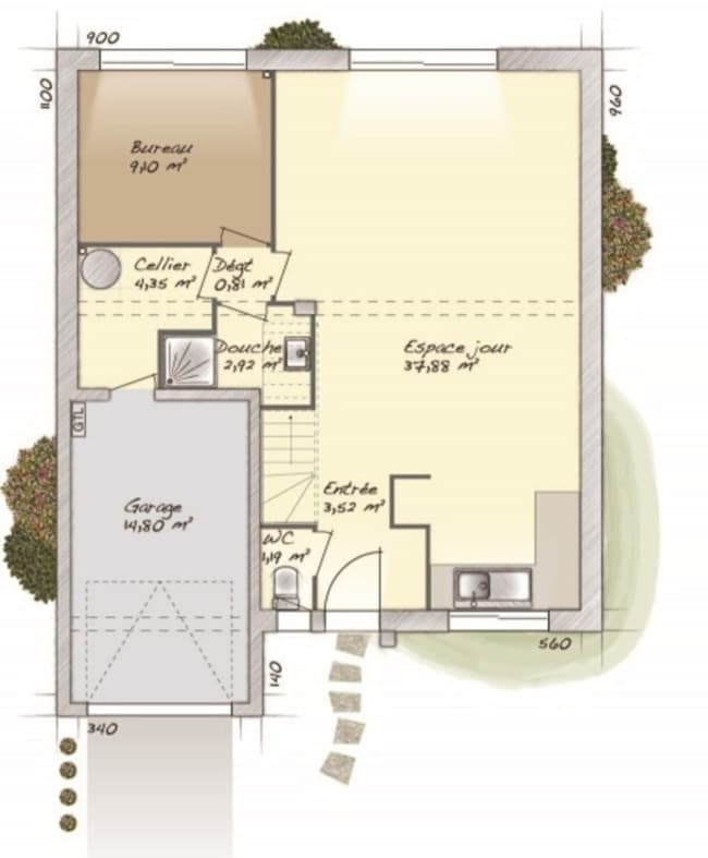
VENTE : maison T6 (98 m²) à Vitry-sur-Seine MAISON 6 PIÈCES NEUVE En vente : à côté du RER C (5 min de Paris), votre agence Maisons Balency Saint-Maur-des-Fossés est ravie de vous présenter cette maison de 6 pièces de 98 m² à Vitry-sur-Seine (94400). Son intérieur est composé de quatre chambres, d'une cuisine et d'une salle de bains. Le terrain de la propriété s'étend sur 360 m². Il s'agit d'une maison de 2 niveaux. Elle est neuve. Il y a tous les types d'établissements scolaires (maternelle, élémentaire et secondaire) à moins de 10 minutes à pied, tout comme une structure d'accueil pour les enfants en bas âge. Niveau transports en commun, on trouve cinq lignes de RER ainsi que 34 gares à moins de 10 minutes en voiture. Il y a un bassin de natation, une bibliothèque, un tennis, des boulangeries, des commerces, deux supermarchés, des boucheries-charcuteries et deux bureaux de poste à proximité du bien. Enfin, 2 marchés animent les environs. Elle est proposée à l'achat pour 754 000 €. Prenez contact avec notre agence (MONTANIER Aurelien : 06-24-66-88-34) pour toute question sur la maison ou sur les modalités de vente. Faites de vos projets immobiliers une réalité avec Maisons Balency Saint-Maur-des-Fossés.










