

- Prix
- 305 000 €
Maison neuve • Béziers (34)
- Nom et prix
- Terrain à bâtir Béziers (34500) • 305 000 €
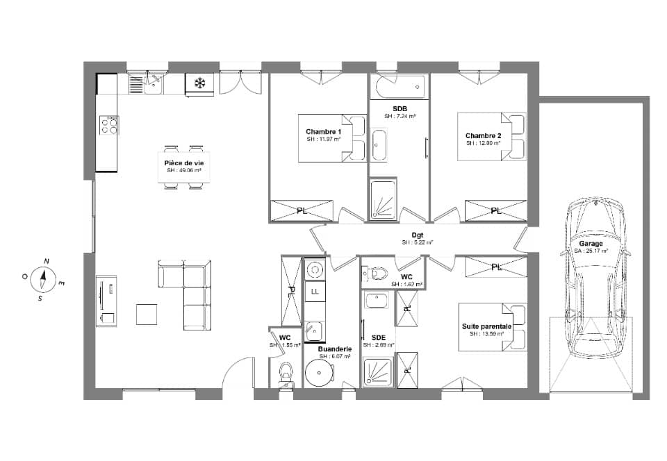
PROJET DE CONSTRUCTION - Béziers : maison T4 (81 m²) MAISON 4 PIÈCES En vente : localisée à 13 km de la mer Méditerranée, nous sommes heureux de vous présenter à Béziers (34500), cette maison de 4 pièces de plain-pied de 81 m². Son intérieur inclut trois chambres, une cuisine, un cellier, une salle de bains et un garage. (Carrelage inclus dans toutes les pièces / Raccordements inclus). Le terrain de la propriété s'étend sur 760 m². Il y a tous les types d'établissements scolaires (de la maternelle au lycée) à moins de 10 minutes à pied, tout comme une structure d'accueil pour la petite enfance. Niveau transports, on trouve la gare Béziers à moins de 10 minutes en voiture. Les autoroutes A75 et A9 sont accessibles à moins de 4 km. Il y a un bassin de natation, une bibliothèque, des commerces, des boulangeries, un bureau de poste, une poissonnerie et deux épiceries à quelques minutes du bien. Son prix de vente est de 305 000 €. Pour plus d'information contacter (Anthony BALLESTER : 06.27.21.51.55) Maisons de Manon Béziers pour échanger sur votre projet et réaliser une étude gratuite. (Plan personnalisable). Tous nos ouvrages sont réalisés sur-mesure en fonction de vos attentes et de nos échanges avec vous ainsi que dans le respect de la règlementation RE 2020. Ce projet comporte les garanties suivantes: Contrat de construction CCMI. Dommage/Ouvrage. RC Garantie décennale. Parfaite achèvement. Etude de sol G2. Prix et délais convenu. Garantie financière Pour votre tranquillité nous nous occupons de toutes les formalités administratives.











