

- Prix
- 183 126 €
Maison neuve • FAREMOUTIERS (77)
- Nom et prix
- Projet de construction d'une maison 132 m² avec terrain à FAREMOUTIERS (77) • 183 126 €
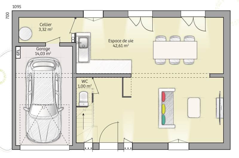
A FAREMOUTIERS sur un terrain de 700 m², MAISONS SESAME vous propose de réaliser cette maison neuve d'une surface de 132 m² habitables avec 5 chambres. Le modèle PYROPE 130 2 pans est une maison de 132 m² au design élégant, mettant en valeur un fronton et un porche rentrant, ce qui lui confère un style à la fois raffiné et accueillant. Au rez-de-chaussée, vous trouverez un bureau idéal pour travailler à domicile, ainsi qu'une entrée spacieuse. Le grand séjour lumineux est ouvert sur une cuisine fonctionnelle, créant un espace de vie convivial. Ce niveau comprend également un WC séparé. À l’étage, les quatre chambres sont bien agencées, dont une suite parentale avec sa propre salle de douche. Ce modèle combine élégance, fonctionnalité et confort pour répondre aux besoins d’une famille moderne. MAISONS SÉSAME vous propose les prestations suivantes : - Plans des maisons modulables et adaptables selon vos besoins et les spécificités de votre terrain - Large choix de systèmes de chauffage performants et économes en énergie - Sélection de matériaux de qualité garantissant confort et durabilité - Accompagnement sur-mesure pour la recherche et l’acquisition de votre terrain - Construction conforme à la réglementation en vigueur et à la norme RE2020 - Maisons certifiées NF HABITAT, gage de qualité, de performance et de confort Informations du terrain : A pieds des écoles primaires, collège mais également des commerces. Demandez une étude gratuite et personnalisée de votre projet de construction ! Étude gratuite de votre projet de construction ! De nombreux terrains disponibles dans votre secteur. Informations légales : Maisons Sésame, constructeur de maisons individuelles, propose une sélection de terrains en collaboration avec ses partenaires fonciers, sous réserve de disponibilité. Il n’agit pas en tant que mandataire pour la vente de ces terrains. Nos maisons, certifiées NF Habitat et conformes à la réglementation thermique en vigueur, vous garantissent un habitat durable et économe en énergie. Découvrez un large choix de modèles adaptés aux besoins de toute la famille. Informations tarifaires : Les prix indiqués sont donnés à titre indicatif et n’incluent pas les frais annexes (frais de notaire, raccordements, etc.). Les visuels et prix présentés sont non contractuels. Pour plus de détails, consultez nos conditions en agence. N° ORIAS IOBSP 13007108 – RCS Versailles 388 827 426. Les informations sur les risques auxquels ce bien est exposé sont disponibles sur le site Géorisques : www.georisques.gouv.fr Cette annonce a été créée et diffusée avec le logiciel VITAHOME. Contactez Thierry DUARTE au 06 48 18 53 97 (Maisons Sésame - Agence de Bussy Saint Georges).












