

- Prix
- 810 200 €
Maison neuve • Villiers-sur-Marne (94)
- Nom et prix
- Terrain à bâtir () • 810 200 €
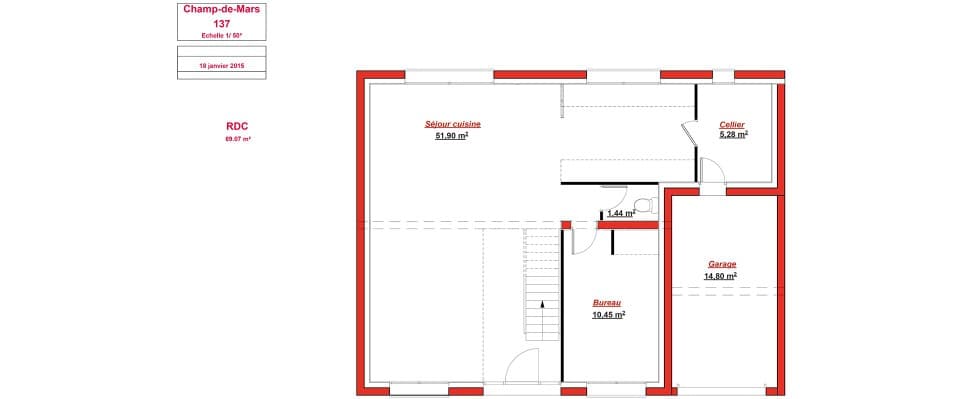
Villiers-sur-Marne : maison de 5 pièces (137 m²) en vente MAISON 5 PIÈCES NEUVE En vente à Villiers-sur-Marne (94350), nous sommes heureux de vous proposer cette maison de 5 pièces de 137 m² et de 470 m² de terrain. C'est une maison de 2 niveaux. Son intérieur offre trois chambres, une cuisine et deux salles de bains. La maison est neuve. Il y a plusieurs écoles (maternelle, élémentaire, primaire et collège) à moins de 10 minutes à pied, tout comme quatre structures d'accueil pour les tout-petits. Côté transports en commun, on trouve la station de RER Villiers-Sur-Marne-Plessis-Trévise (ligne E) ainsi que la gare Villiers-sur-Marne-Le Plessis-Trévise dans les alentours. Il y a une bibliothèque, deux tennis, un bassin de natation, des commerces, des boulangeries, trois supermarchés, des boucheries-charcuteries et deux bureaux de poste à proximité du bien. Le marché Place de l'église anime les environs. Son prix de vente est de 810 200 €. N'hésitez pas à prendre contact avec notre agence (Franck THAREAU : 01-48-81-08-79) pour toute question sur la maison. Maisons Berval Le Perreux-sur-Marne est là pour vous accompagner à toutes les étapes de votre projet.











