

- Prix
- 228 576 €
Maison neuve • RUE DE LA MAIRIE (78)
- Nom et prix
- Projet de construction d'une maison 124 m² avec terrain à FLINS-SUR-SEINE (78) • 228 576 €
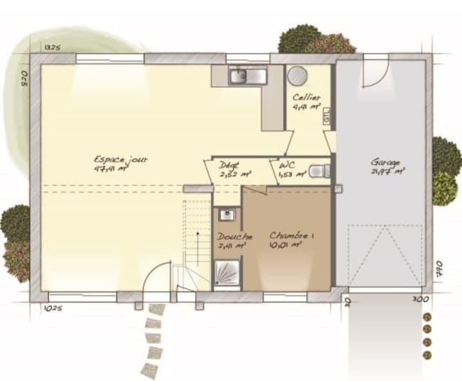
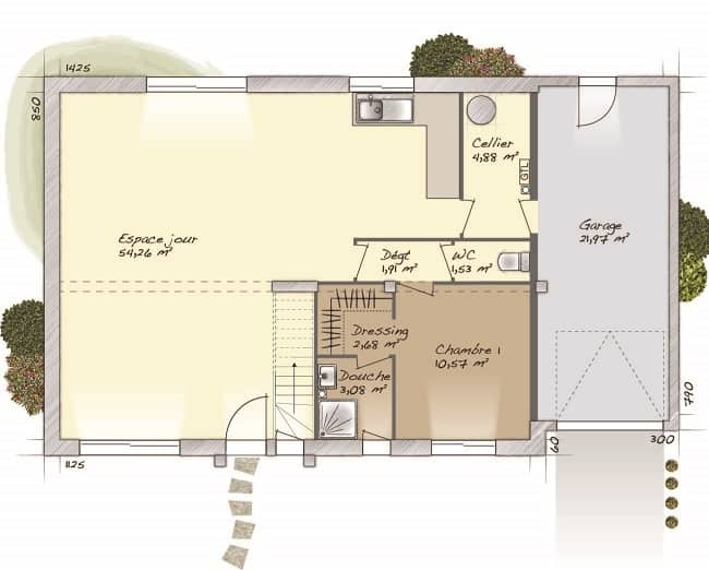
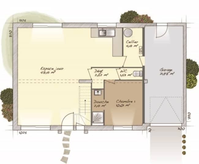
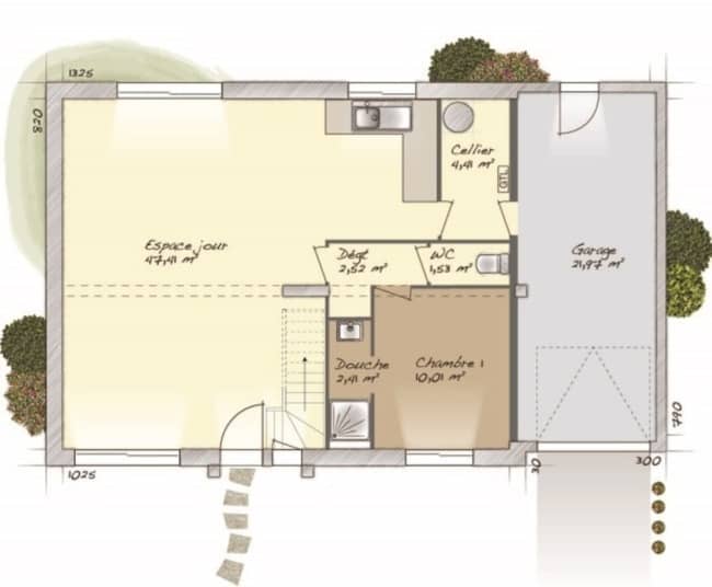
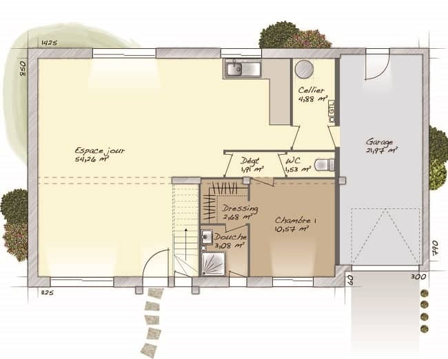
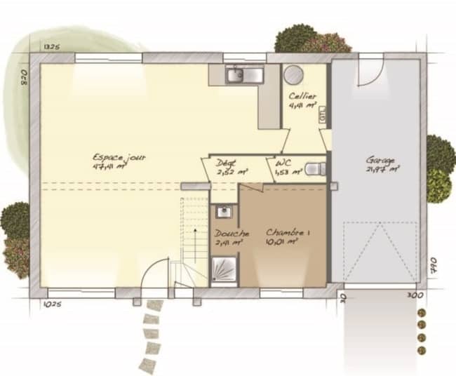
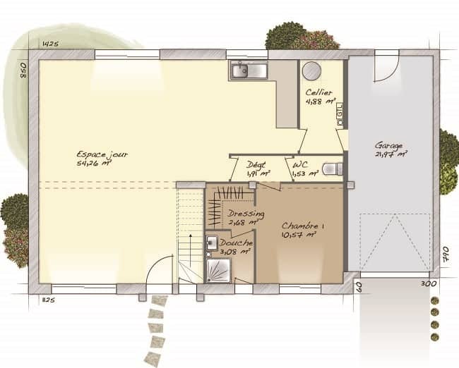
A FLINS-SUR-SEINE sur un terrain de 400 m², MAISONS SESAME vous propose de réaliser cette maison neuve d'une surface de 124 m² habitables avec 4 chambres. Le modèle TOURMALINE offre une surface habitable de 124 m², avec un design unique, caractérisé par une tour en son centre qui apporte un charme indéniable à l’ensemble de la maison. Au rez-de-chaussée, l’entrée mène à un séjour spacieux, une cuisine ouverte, un WC séparé, ainsi qu’un grand garage. Cette disposition permet une circulation fluide et un confort au quotidien. À l’étage, vous trouverez 4 chambres bien agencées, une salle de bains et un WC séparé, assurant ainsi une belle organisation des espaces pour chaque membre de la famille. La TOURMALINE se distingue par son design original et son atmosphère chaleureuse, idéale pour les familles en quête de confort et de caractère. MAISONS SÉSAME vous propose les prestations suivantes : - Plans des maisons modulables et adaptables selon vos besoins et les spécificités de votre terrain - Large choix de systèmes de chauffage performants et économes en énergie - Sélection de matériaux de qualité garantissant confort et durabilité - Accompagnement sur-mesure pour la recherche et l’acquisition de votre terrain - Construction conforme à la réglementation en vigueur et à la norme RE2020 - Maisons certifiées NF HABITAT, gage de qualité, de performance et de confort Informations du terrain : TERRAIN ELIGIBLE AU PRÊT A TAUX ZERO !!!! Demandez une étude gratuite et personnalisée de votre projet de construction ! Étude gratuite de votre projet de construction ! De nombreux terrains disponibles dans votre secteur. Informations légales : Maisons Sésame, constructeur de maisons individuelles, propose une sélection de terrains en collaboration avec ses partenaires fonciers, sous réserve de disponibilité. Il n’agit pas en tant que mandataire pour la vente de ces terrains. Nos maisons, certifiées NF Habitat et conformes à la réglementation thermique en vigueur, vous garantissent un habitat durable et économe en énergie. Découvrez un large choix de modèles adaptés aux besoins de toute la famille. Informations tarifaires : Les prix indiqués sont donnés à titre indicatif et n’incluent pas les frais annexes (frais de notaire, raccordements, etc.). Les visuels et prix présentés sont non contractuels. Pour plus de détails, consultez nos conditions en agence. N° ORIAS IOBSP 13007108 – RCS Versailles 388 867 426. Les informations sur les risques auxquels ce bien est exposé sont disponibles sur le site Géorisques : www.georisques.gouv.fr Cette annonce a été créée et diffusée avec le logiciel VITAHOME. Contactez Driss CHAKIR au 06 59 70 54 17 ou au 01 82 20 01 50 (Maisons Sésame - Agence de Coignières).











