

- Prix
- 334 500 €
Maison neuve • Senlis (60)
- Nom et prix
- Terrain à bâtir Senlis (60300) • 334 500 €
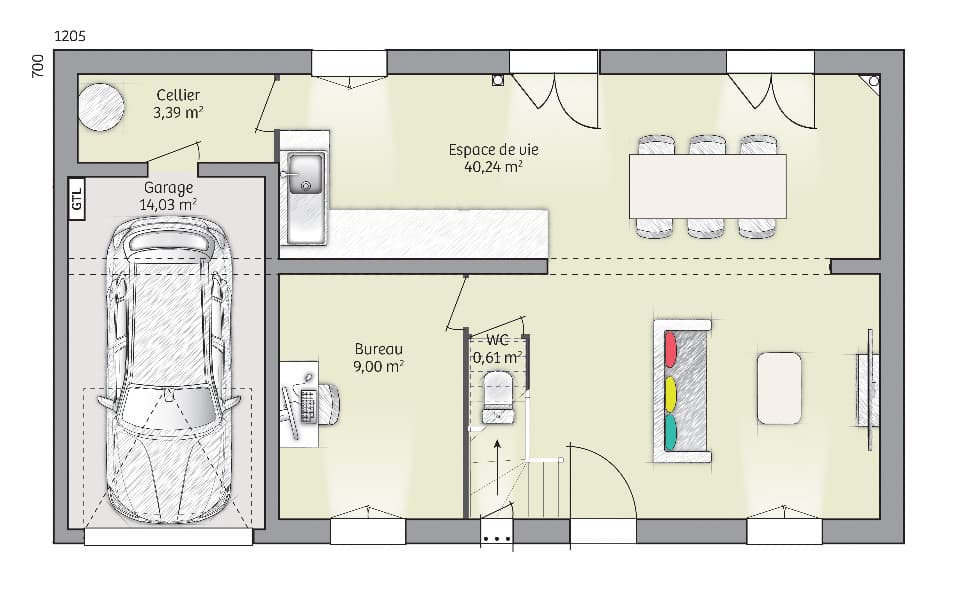
Contactez Guillaume Bordes de l'agence Maisons Evolution de Mareuil-lès-Meaux au 06.22.93.94.71 pour avoir plus d'informations sur ce projet. Magnifique maison traditionnelle de 84 m² habitables idéalement située sur la commune de Chamant, limitrophe de Senlis. Elle est composée de 4 chambres dont une suite parentale, d'une grande salle de bains, de deux WC et d'un salon-séjour lumineux avec cuisine ouverte donnant sur un cellier. Les plans sont modifiables selon vos souhaits, en agence ou visioconférence. Nous vous proposons un véritable accompagnement de qualité tout au long de votre projet. Dessinons ensemble votre future maison ! Tel: 06.22.93.94.71

