

- Prix
- 665 900 €
Maison neuve • Chartrettes (77)
- Nom et prix
- Terrain à bâtir Chartrettes (77590) • 665 900 €
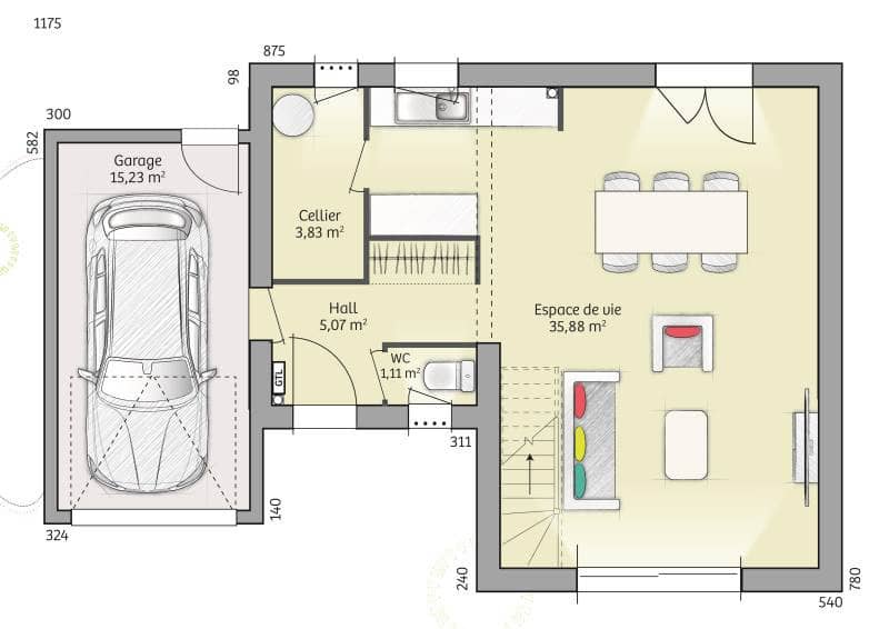
Le modèle « Ergonomy » de BERVAL se distingue par son adaptabilité aux différentes étapes de la vie de ses occupants. Conçu pour améliorer le bien-être et simplifier le quotidien, il offre une flexibilité unique : un rez-de-chaussée totalement fonctionnel pour une personne seule ou un couple, avec la possibilité d'aménager l'étage à mesure que les besoins d'espace grandissent. L'ergonomie du modèle ne se limite pas à une optimisation de l'espace. Chaque détail a été pensé pour réduire les contraintes physiques et fluidifier les gestes quotidiens. Les meubles et équipements sont organisés pour éviter les mauvaises postures et faciliter les mouvements. De nombreux accessoires sont fixés aux murs, libérant ainsi l'espace au sol pour un intérieur plus aéré et plus facile à entretenir. Le modèle privilégie des équipements multifonctions, offrant un espace maximisé et une circulation fluide. Avec une hauteur sous plafond de 2,70 m au rez-de-chaussée, des portes coulissantes intégrées, et un plancher chauffant performant, « Ergonomy » allie confort et innovation. Cette maison est également conforme aux normes PMR (Personnes à Mobilité Réduite); Elle comprend une chambre et une salle de bains au rez-de-chaussée, ainsi que trois chambres et deux salles de bains à l'étage, offrant ainsi un cadre de vie évolutif et confortable. Pour toute demande d'information ou pour étudier ensemble votre projet, contactez Chloé Burot. Maisons Berval est certifiée NF HQE (Haute Qualité Environnementale) pour vous garantir un habitat sain, durable et performant.













