

- Prix
- 427 240 €
Maison neuve • Pierrelaye (95)
- Nom et prix
- Terrain à bâtir Pierrelaye (95480) • 427 240 €
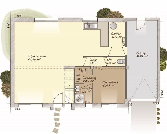
VENTE : maison de 6 pièces (117 m²) à Pierrelaye IDÉALEMENT SITUÉE - MAISON 6 PIÈCES NEUVE À deux pas du Transilien H (30 min de Paris), ayez le coup de coeur pour en vente, idéalement située dans Pierrelaye (95480), cette maison de 6 pièces de plain-pied de 117 m². Elle est composée de quatre chambres, d'une cuisine et de deux salles de bains. La maison est neuve. Le terrain du bien s'étend sur 252 m². La maison se trouve dans un quartier attractif. Il y a plusieurs écoles (maternelle, élémentaire, primaire et collège) à moins de 10 minutes à pied, tout comme une structure d'accueil pour les tout-petits. Niveau transports, on trouve la station de RER Pierrelaye (ligne C) ainsi que la gare Pierrelaye à quelques pas du bien. On trouve une bibliothèque, un bassin de natation, des boulangeries, des commerces, une boucherie-charcuterie, un bureau de poste et quatre épiceries dans les environs. Elle est à vendre pour la somme de 427 240 €. N'hésitez pas à prendre contact avec Christophe TALAMONI (06-49-55-08-27) pour tout renseignement sur la maison, sur les démarches à suivre ou sur les modalités de vente. Maisons Balency Pierrelaye est là pour vous accompagner à toutes les étapes de votre projet.











