

- Prix
- 399 906 €
Maison neuve • Mériel (95)
- Nom et prix
- Terrain à bâtir () • 399 906 €
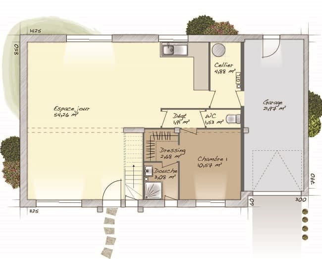
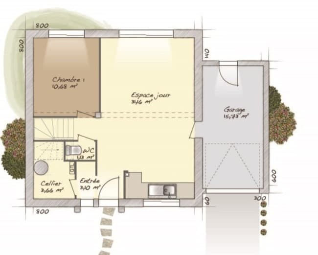
VENTE d'une maison de 6 pièces (117 m²) à Mériel PROCHE DE PARIS - MAISON 6 PIÈCES NEUVE À côté de la gare (Paris à 40 min avec le Transilien H), découvrez cette maison de 6 pièces de plain-pied de 117 m² et de 335 m² de terrain à vendre à Mériel (95630). Son intérieur propose quatre chambres, une cuisine et deux salles de bains. Cette maison est neuve. Quatre établissements scolaires sont implantés à moins de 10 minutes à pied. Niveau transports, on trouve la gare Mériel dans un rayon de 1 km. Il y a une bibliothèque, un tennis, deux commerces, une boulangerie, une boucherie-charcuterie, une épicerie et un bureau de poste à quelques minutes à peine. Elle est proposée à l'achat pour 399 906 €. Prenez contact avec Denis DUCOS (06-80-06-50-40) pour toute information sur la maison, sur les modalités de vente ou sur les démarches à suivre.










