

- Prix
- 374 000 €
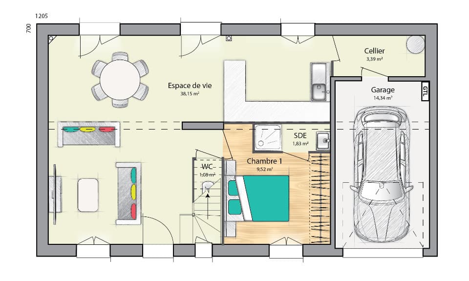
Maison neuve • Pontarmé (60)
- Nom et prix
- Terrain à bâtir () • 374 000 €
Maison à combles aménagés , située à Pontarmé , sur un terrain de 533m² viabilisé . Proximité immédiate de l'école et du périscolaire , environnement paisible et verdoyant , à 5 minutes de Senlis , et 25 minutes de Roissy. Cette maison dispose de 4 chambres avec rangements intégrés , séjour carrelé ,2 salles d'eau équipées ,cellier et garage , packs alarme et domotique . Tout nos plans sont 100% personnalisables et modifiables selon vos gouts et habitudes de vie . Profitez également de notre expérience de plus de 13 ans sur le secteur , et bénéficiez d'un accompagnement intégral pour votre projet de vie : Financement , étude technique du terrain , gestion administrative . Les frais annexes ( raccordements , viabilisation , puisards, enlèvements des terres excédentaires , chemin d'accès )inclus dans le prix de cette annonce . Contactez moi pour une étude gratuite . Rendez vous en agence ou à votre domicile . VERON ANTHONY /07/77/85/58/88/