

- Prix
- 113 938 €
Maison neuve • PENCHARD (77)
- Nom et prix
- Projet de construction d'une maison 60 m² avec terrain à PENCHARD (77) • 113 938 €
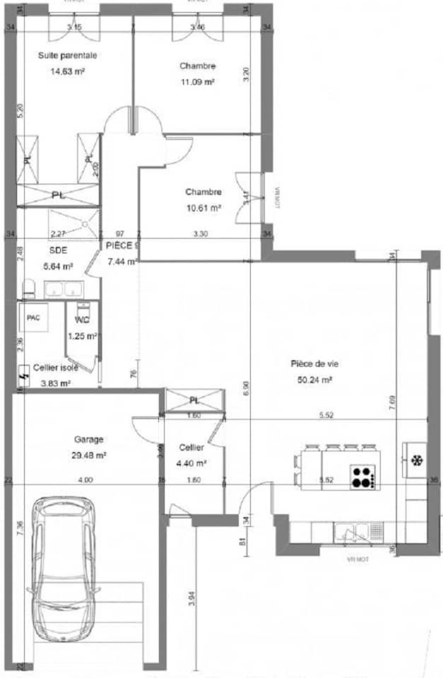
A PENCHARD sur un terrain de 261 m², MAISONS SESAME vous propose de réaliser cette maison neuve d'une surface de 60 m² habitables avec 2 chambres. La maison de plain-pied ALYA 60, d'une surface habitable de 60 m², est conçue pour offrir un espace de vie fonctionnel et agréable. Ce modèle comprend un rez-de-chaussée de 60 m², où chaque mètre carré a été optimisé pour offrir confort et praticité. Avec ses trois pièces, dont deux chambres, elle est idéale pour une petite famille ou un couple. La pièce à vivre est spacieuse et lumineuse, permettant de profiter pleinement de l'espace ouvert qui se prolonge souvent vers l'extérieur, créant une ambiance chaleureuse. En somme, le modèle ALYA 60 offre un design simple et moderne, parfait pour ceux qui recherchent une maison fonctionnelle et bien pensée, tout en étant dans un format compact. MAISONS SÉSAME vous propose les prestations suivantes : - Plans des maisons modulables et adaptables selon vos besoins et les spécificités de votre terrain - Large choix de systèmes de chauffage performants et économes en énergie - Sélection de matériaux de qualité garantissant confort et durabilité - Accompagnement sur-mesure pour la recherche et l’acquisition de votre terrain - Construction conforme à la réglementation en vigueur et à la norme RE2020 - Maisons certifiées NF HABITAT, gage de qualité, de performance et de confort Informations du terrain : Terrain plat Rare a ce prix dans le secteur Idéal pour un 1er achat , jeune couple Belle Façade Maison plain pied ou R+1 possible Demandez une étude gratuite et personnalisée de votre projet de construction ! Étude gratuite de votre projet de construction ! De nombreux terrains disponibles dans votre secteur. Informations légales : Maisons Sésame, constructeur de maisons individuelles, propose une sélection de terrains en collaboration avec ses partenaires fonciers, sous réserve de disponibilité. Il n’agit pas en tant que mandataire pour la vente de ces terrains. Nos maisons, certifiées NF Habitat et conformes à la réglementation thermique en vigueur, vous garantissent un habitat durable et économe en énergie. Découvrez un large choix de modèles adaptés aux besoins de toute la famille. Informations tarifaires : Les prix indiqués sont donnés à titre indicatif et n’incluent pas les frais annexes (frais de notaire, raccordements, etc.). Les visuels et prix présentés sont non contractuels. Pour plus de détails, consultez nos conditions en agence. N° ORIAS IOBSP 13007108 – RCS Versailles 388 827 426. Cette annonce a été créée et diffusée avec le logiciel VITAHOME. Contactez Cédric TROCME au 06 03 58 59 00 (Maisons Sésame - Agence de Chelles). Suivez moi sur Facebook Mr-Trocme Maisons-Sésame







