

- Prix
- 409 000 €
Maison neuve • Barcy (77)
- Nom et prix
- Terrain à bâtir Barcy (77910) • 409 000 €
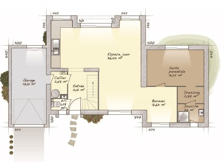
À SAISIR : Projet de construction d'une maison neuve avec prestations haut de gamme sur la commune de Barcy à 10 minutes seulement de Meaux. Vous rêvez de devenir propriétaire d'une maison moderne et personnalisée ? Nous vous proposons un projet de construction alliant élégance, confort et technologies de pointe ! Situé dans un quartier résidentiel prisé, ce projet de maison neuve saura répondre à toutes vos attentes grâce à des prestations de haute qualité et un design contemporain. Caractéristiques principales du projet : - Surface habitable prévue : 117 m² - Agencement modulable : Jusqu'à 4 chambres spacieuses, incluant une suite parentale avec dressing et salle de bain privative - Espace de vie : Grand séjour lumineux, ouvert sur une cuisine américaine avec îlot central (possibilité de personnalisation des matériaux et finitions) - Salles de bains : 2 salles de bains modernes, équipées de douches à l'italienne et baignoires selon vos envies - Jardin : Terrain de 667 m² inclus, prêt à être aménagé selon vos goûts - Prestations et équipements : Chauffage au sol, domotique dernier cri, pompe à chaleur, possibilité de mettre des panneaux solaires, isolation thermique et phonique de haute qualité Pourquoi choisir ce projet - Conception sur mesure : Plan personnalisé selon vos préférences et besoins - Matériaux de qualité : Finitions et équipements haut de gamme pour un confort optimal - Écologique et économe : Construit selon les dernières normes environnementales (RT 2020) - Accompagnement : Suivi complet du projet par des professionnels, de la conception jusqu'à la remise des clés Ce projet est l'occasion parfaite de concrétiser votre rêve d'une maison neuve à votre image, dans un cadre de vie agréable et proche des commodités (écoles, commerces, transports). Prix à partir de : 409000 € N'attendez plus ! Contacter Alexis au 06.24.80.08.34 pour en savoir plus sur ce projet et découvrir comment nous pouvons construire votre future maison sur mesure !










