

- Prix
- 138 500 €
Maison neuve • Sireuil (16)
- Nom et prix
- Terrain à bâtir Sireuil (16440) • 138 500 €
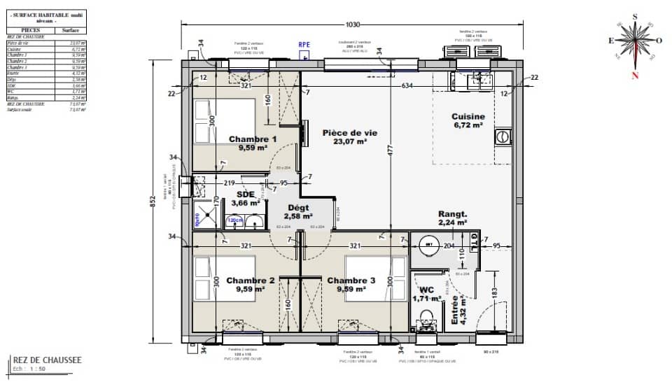
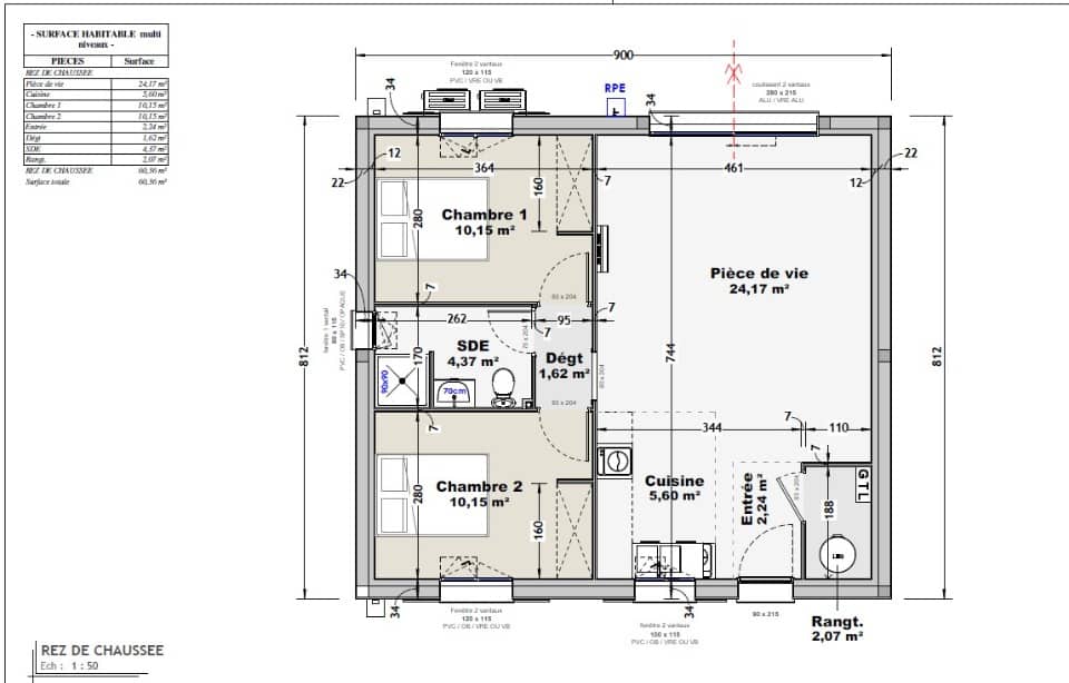
A 10 km d'Angoulême, Bermax Construction Saint-Yrieix-sur-Charente vous présente cette maison de 3 pièces de plain-pied de 60 m² et de 625 m² de terrain à Sireuil (16440). Son intérieur dispose de deux chambres, d'une cuisine et d'une salle de bains. L'École Primaire Jean Zay se trouve à moins de 10 minutes à pied. Niveau transports, il y a la gare Châteauneuf-sur-Charente à moins de 10 minutes en voiture. Les nationales N10 et N141 sont accessibles à moins de 9 km. On trouve, une boulangerie et une épicerie à proximité du bien. Elle est proposée à l'achat pour 138 500 €. N'hésitez pas à prendre contact avec notre chargée de projet (Pauline : 06-80-96-56-78) pour obtenir de plus amples renseignements sur cette maison, sur les démarches à suivre ou sur les modalités de vente. Bermax Construction Saint-Yrieix-sur-Charente vous accompagne à toutes les étapes de l'achat et dans tous vos projets immobiliers.











