

- Prix
- 351 000 €
Maison neuve • Cernay-lès-Reims (51)
- Nom et prix
- Terrain à bâtir () • 351 000 €
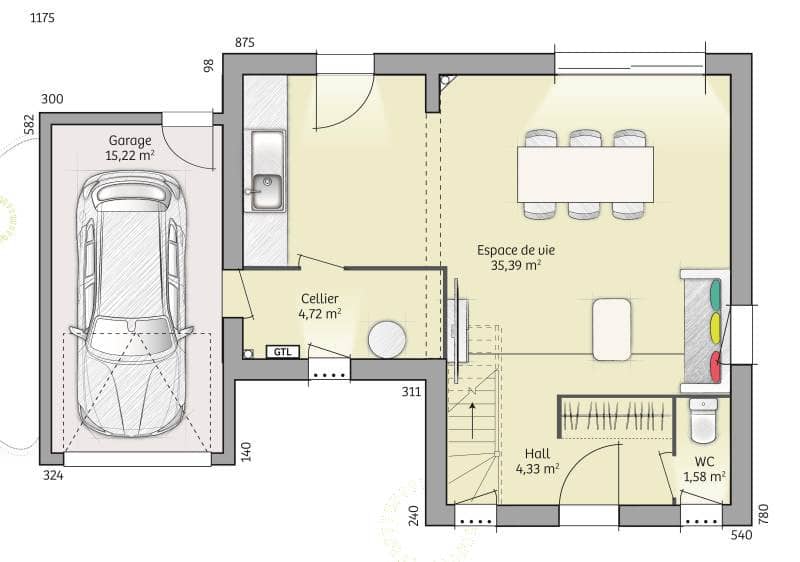
À Cernay Lès Reims, maison neuve (normes RE 2020) de 90m2 avec patio. Maison de construction traditionnelle (matériaux de qualité, ossature en brique) de 3 chambres (possibilité d'une quatrième). Le modèle présenté est le modèle Open Nord ETG L GA accès Sud 90 so chic d'une surface habitable de 90m2 et compte une pièce de vie ouverte sur la cuisine, une salle de bain, 3 chambres, avec espace pour les placards, deux wc, un cellier et un garage. Il est possible de personnaliser ces plans afin qu'ils répondent parfaitement à vos attentes. Terrain constructible de 460m2 à Cernay Lès Reims parfaitement plat et idéalement situé au calme et proche de toutes les commodités. Environnement de qualité aux portes de Reims. Cernay Lès Reims est une commune proche de Reims, Bétheny, Witry Lès Reims, Nogent l'Abbesse, Fresnes Lès Reims, Bourgogne, Caurel, Pomacle et Lavannes. Plusieurs parcelles sont disponibles sur cette commune. Pour plus de renseignements vous pouvez me contacter , Nicolas GUILLAUME de l'agence Maisons France Confort de Cormontreuil au 07.77.79.23.59











