

- Prix
- 195 000 €
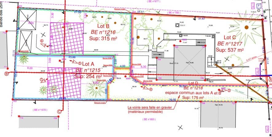
Terrain • SAINT-LEU-LA-FORET (95)
- Nom et prix
- Terrain à bâtir de 315 m² à SAINT-LEU-LA-FORET (95) • 195 000 €
Proche écoles, transports, et un quartier agréable à vivre Prix : 195000 €. Sur ce terrain de 315 m² à SAINT-LEU-LA-FORET, MAISONS SESAME vous propose de réaliser votre projet de construction de maison individuelle. Maisons Sésame propose de construire votre maison neuve avec toutes les prestations suivantes : - Plan sur-mesure et personnalisé de 2 à 6 chambres - Mode de chauffage au choix - Grands choix d'équipements et de prestations - Matériaux de qualité selon les normes en vigueur - Accompagnement dans le choix et l’acquisition du terrain - Construction conforme à la nouvelle RE 2020 Demandez une étude gratuite et personnalisée de votre projet de construction sur ce terrain ! Etude gratuite de votre projet de construction ! De nombreux autres terrains sont disponibles dans votre secteur Maisons Sésame, constructeur de maisons individuelles, propose avec ses partenaires fonciers une sélection de terrains sous réserve de disponibilités. Il n’est pas mandaté pour la vente du terrain. Prix indicatifs hors frais annexes. Visuels et prix non contractuels - Voir conditions en agence - N° ORIAS IOBSP 13007108 - RCS 388 867 426. Les informations sur les risques auxquels ce bien est exposé sont disponibles sur le site Géorisques : www.georisques.gouv.fr Cette annonce a été créée et diffusée avec le logiciel VITAHOME. Contactez Nassim LAADJ au 06 10 14 52 18 ou au 01 39 83 27 47 (Maisons Sésame - Agence d'Eaubonne).











