

- Prix
- 272 900 €
Maison neuve • Tauriac
- Nom et prix
- Terrain à bâtir Tauriac (81630) • 272 900 €
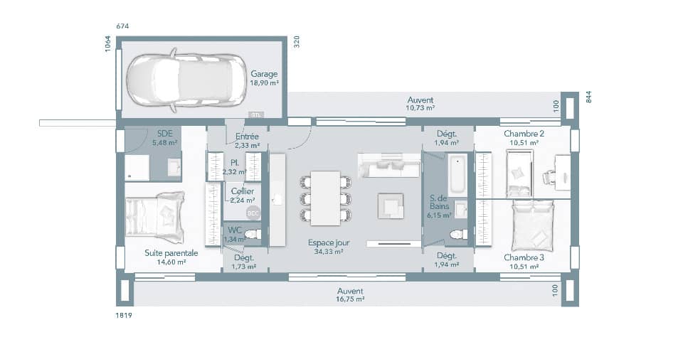
VOTRE MAISON ARCHITECTE AVEC LE N° 1 DE LA CONSTRUCTION EN FRANCE. Nous vous présentons cette maison de plain-pied 95 m² située vers TAURIAC. Elle inclut trois chambres, une cuisine et deux salles de bains. Elle s'accompagne d'un garage aussi! Le terrain de cette maison s'étend sur 400 m². Contactez-nous dès aujourd'hui ! Prix: 272 900€HF Pour toutes informations, contactez l'agence MAISONS FRANCE CONFORT d'Aucamville au 05.34.43.84.38'





