

- Prix
- 260 000 €
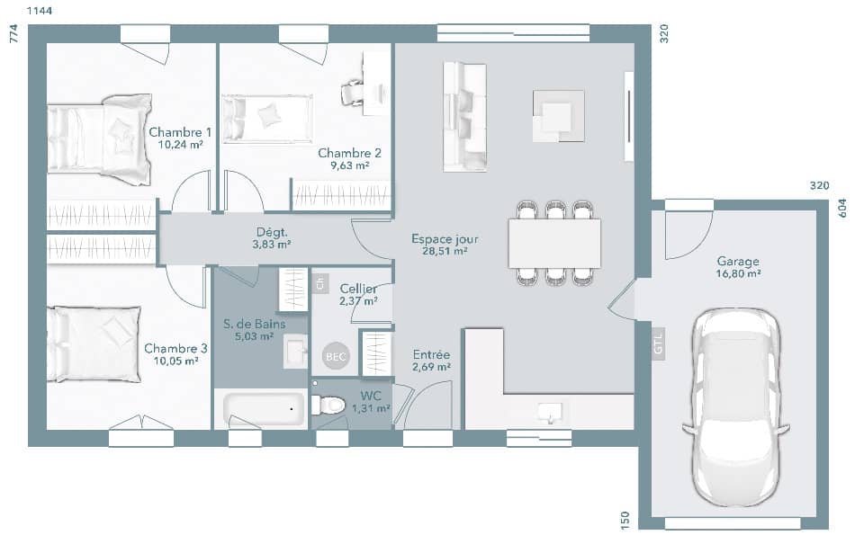
Maison neuve • Fabas
- Nom et prix
- Terrain à bâtir Fabas (82170) • 260 000 €
L'agence Maisons France Confort d'AUCAMVILLE a imaginé pour vous cette maison neuve RE 2020 de 103 m² à FABAS . Sur une parcelle de 1070 m², le modèle présenté est OPTIMA 103. Conception traditionnelle de plain-pied, entièrement personnalisable, composée d'une entrée, d'une pièce de vie avec séjour et cuisine 38 m², d'un cellier, de 4 chambres dont une suite parentale en option (dressing + salle d'eau), d'une salle de bains et WC indépendant. Le garage de 17m² est intégré à la maison. Au calme, à seulement 5 minutes des commodités et Toulouse accessible en 30 minutes. Votre conseiller de l'agence Maisons France Confort d'AUCAMVILLE est à votre disposition au 05 34 43 84 38 Xavier FEUGUEUR. PRIX : 260 000 € HF





