

- Prix
- 570 000 €
Maison neuve • L'Union
- Nom et prix
- Terrain à bâtir L'Union (31240) • 570 000 €
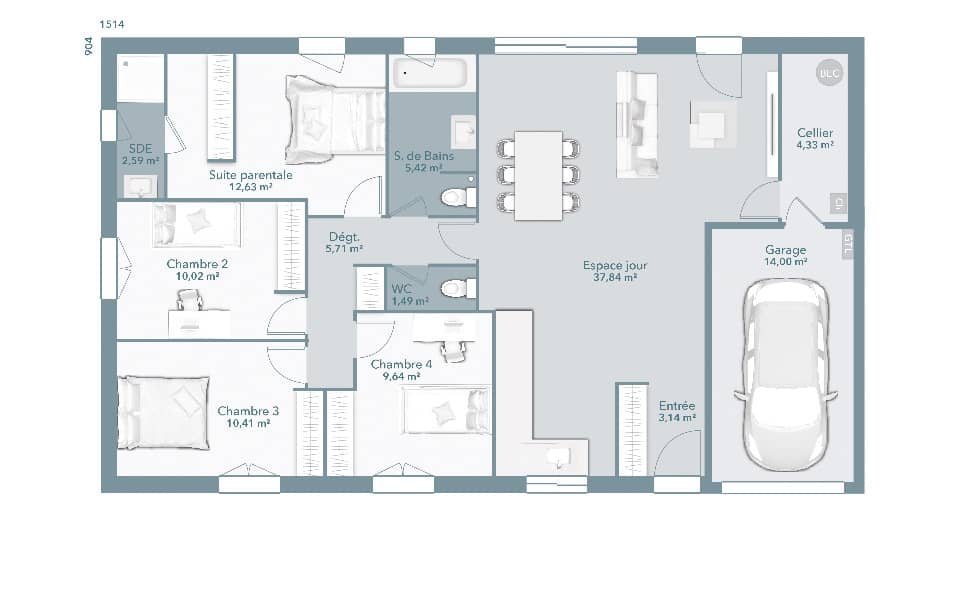
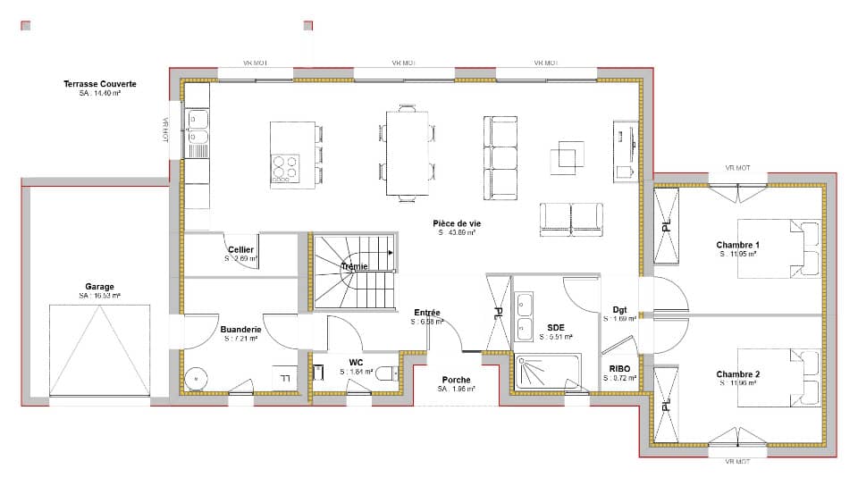
Maison de 5 pièces (135 m²) à vendre à Saint-Jean EMPLACEMENT PRIVILÉGIÉ - MAISON 5 PIÈCES NEUVE d'architecture contemporaine localisée à quelques kilomètres de Toulouse, Maisons France Confort Aucamville vous propose, bénéficiant d'un emplacement privilégié dans Saint-Jean (31240), cette maison de 5 pièces de 135 m² avec vue panoramique sur les Pyrénées. Cette maison compte 2 niveaux. Elle dispose de trois chambres, d'une cuisine, d'un cellier, d'une pièce de vie et de deux salles de bains. La maison est neuve. Le terrain de la propriété s'étend sur 1 359 m². Cette maison à bâtir au milieu d'un écrin de verdure se trouve dans un secteur très recherché et central de St JEAN (commerces et écoles). Elle est à vendre pour la somme de 570 000 € Hors Frais. N'hésitez pas à prendre contact avec Xavier FEUGUEUR (tél : 06-99-71-31-31) pour plus d'informations sur la maison et sur les modalités de vente.





