

- Prix
- 231 593 €
Maison neuve • Montbeton
- Nom et prix
- Terrain à bâtir Montbeton (82290) • 231 593 €
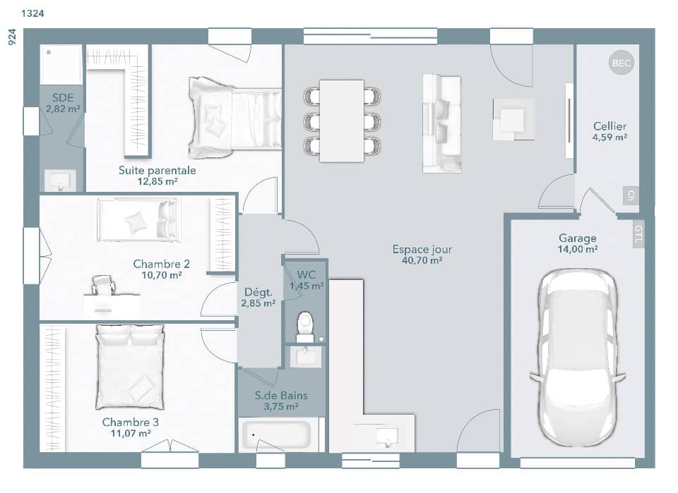
'Votre agence Maisons France Confort d'Aucamville vous propose ce beau projet maison + terrain à Montbeton Faire le choix d'une maison fonctionnelle et optimisée c'est opter pour Optima 90 : une grande pièce de vie de 41 m², un cellier, 2 chambres, une salle de bains et une suite parentale avec salle d'eau privative et dressing en option, le tout de plain-pied, avec un garage intégré et dans un style mêlant parfaitement la simplicité et la modernité ! On adore, et vous ? Pour toutes informations, contactez l'agence MAISONS FRANCE CONFORT d'Aucamville au 05.34.43.84.38' Prix: 231.593 € HF





