

- Prix
- 174 000 €
Maison neuve • Corbarieu
- Nom et prix
- Terrain à bâtir Corbarieu (82370) • 174 000 €
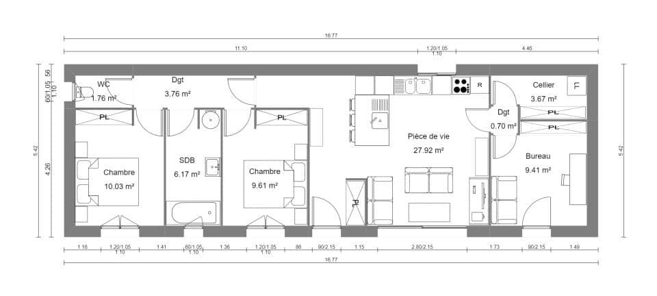
L'agence Maisons France Confort d'AUCAMVILLE - NOUVEAU - Projet de construction RE 2020 avec cette maison de 73m² à CORBARIEU. Idéale pour un premier investissement, cette maison neuve est entièrement personnalisable. Le modèle présenté est ACTUA 73, conception traditionnelle de plain-pied. Il comporte une entrée, un séjour/cuisine de 30m², un cellier, un WC et un espace nuit composé de 3 chambres et une salle de bains. Le garage de 16m² en option est accolé à la maison et accessible par la cuisine. Au coeur de la campagne toulousaine, sur une parcelle constructible de 650 m², vous profiterez des toutes les commodités à seulement 5 minutes. Vous pourrez accéder à Toulouse en 30 minutes. Votre conseiller de l'agence Maisons France Confort d'AUCAMVILLE est à votre disposition au 05 34 43 84 38 Xavier FEUGUEUR. PRIX : 174 000 € HF





