

- Prix
- 183 950 €
Maison neuve • Bondigoux
- Nom et prix
- Terrain à bâtir Bondigoux (31340) • 183 950 €
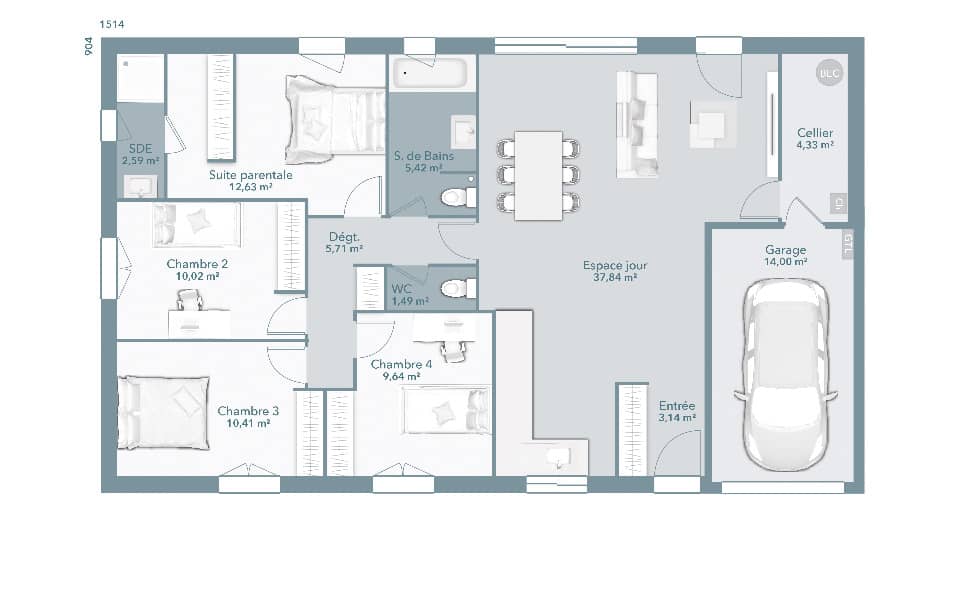
'Votre agence maisons France Confort d'Aucamville vous propose vers la commune de BONDIGOUX ce projet terrain + maison sur cette parcelle de 600 m². Tout en douceur de vie, cette maison s'inscrit naturellement dans une architecture en L, permettant ainsi une séparation judicieuse entre l'espace jour et l'espace nuit. Le séjour traversant et les différentes possibilités d'accès à la maison et au garage permettent diverses implantations dans le respect de l'orientation et de la nature environnante. Ce modèle dispose de 3 chambres et d'une salle de bain. L'espace jour donne accès au cellier et au garage. Prix: 183 950€ hf Pour toutes informations, contactez l'agence MAISONS FRANCE CONFORT d'Aucamville au 05.34.43.84.38.'





