

- Prix
- 235 087 €
Maison neuve • Saint-Porquier
- Nom et prix
- Terrain à bâtir Saint-Porquier (82700) • 235 087 €
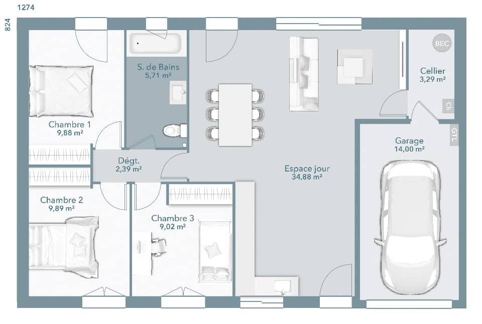
'Votre agence maisons France Confort d'Aucamville vous propose à 12 mn de la commune de St Porquier ce projet terrain + maison sur cette parcelle de 670 m². Tout en douceur de vie, cette maison s'inscrit naturellement dans une architecture en L, permettant ainsi une séparation judicieuse entre l'espace jour et l'espace nuit. Le séjour traversant et les différentes possibilités d'accès à la maison et au garage permettent diverses implantations dans le respect de l'orientation et de la nature environnante. Ce modèle dispose de 3 chambres et d'une salle de bains. L'espace jour donne accès au cellier et au garage. Prix: 235.087.€ hf Pour toutes informations, contactez l'agence MAISONS FRANCE CONFORT d'Aucamville au 05.34.43.84.38.'





