

- Prix
- 209 000 €
Maison neuve • Bouloc
- Nom et prix
- Terrain à bâtir Bouloc (31620) • 209 000 €
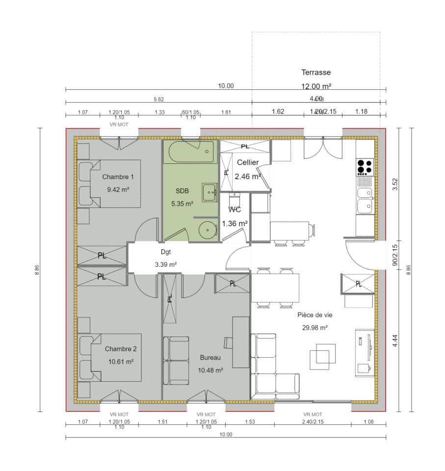
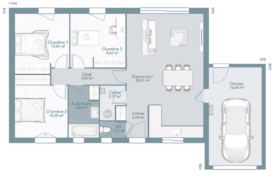
L'agence Maisons France Confort d'AUCAMVILLE vous présente ce nouveau projet terrain + maison à 5 minutes de BOULOC. ACTUA 73 est un modèle de maison traditionnelle économe et entièrement personnalisable. Elle se compose d'une entrée, un séjour/cuisine de 30m², un cellier, un WC et un espace nuit composé de 3 chambres et une salle de bains. Le garage de 15m² est en option et accessible par la cuisine. Au coeur de la campagne toulousaine, sur une parcelle constructible de 960 m², vous profiterez des toutes les commodités à seulement ... minutes. Vous pourrez accéder à Toulouse en 25 minutes. Votre conseiller de l'agence Maisons France Confort d'AUCAMVILLE est à votre disposition au 05 34 43 84 38 Xavier FEUGUEUR. PRIX : 209 000 € HF





