

- Prix
- 239 000 €
Maison neuve • Gémil
- Nom et prix
- Terrain à bâtir Gémil (31380) • 239 000 €
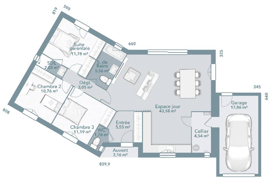
L'agence Maisons France Confort d'AUCAMVILLE vous présente cette maison RE 2020 de type T4 de 100m² à 10 minutes de GEMIL . PERFORMA 100 est un modèle de maison traditionnelle de plain-pied, conçu en V pour une meilleure exposition et 100% personnalisable. Elle comporte une entrée, un WC, un espace séjour/cuisine lumineux de 43m² avec un cellier et une partie nuit composée de 3 chambres et une salle de bains. En option le garage de 17m² est directement accessible par le cellier. Ce projet est réalisable sur une parcelle viabilisée de 737 m². Vous profiterez d'un environnement agréable et calme à proximité de toutes les commodités et à 30 minutes de Toulouse. Contactez l'agence Maisons France Confort d'AUCAMVILLE au 05 34 43 84 38 Xavier FEUGUEUR. PRIX : 239 000 € HF





