

- Prix
- 216 000 €
Maison neuve • La Chevrolière
- Nom et prix
- Terrain à bâtir () • 216 000 €
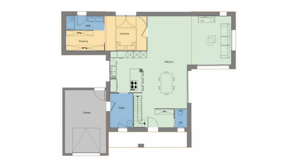
Vente : Maison F3 (55 m²) à La Chevrolière - Emplacement privilégié À seulement 19 km de l'océan Atlantique et à 16 km de Nantes, découvrez cette maison neuve de 3 pièces, d'une superficie de 55 m², idéalement située dans le charmant quartier de La Chevrolière (44118). Profitez du confort d'un plain-pied bien agencé, comprenant deux chambres, une cuisine moderne et une salle de bains. Le terrain de 215 m² vous offre un espace extérieur agréable pour vos moments de détente. Située dans un secteur prisé, cette maison se trouve à proximité des écoles, des commerces, ainsi que d'un supermarché. Vous bénéficierez également d'excellentes connexions grâce à la gare à 10 minutes en voiture et les accès rapides aux autoroutes A83 et N844, à moins de 9 km. Proposée au prix attractif de 216 000 €, cette maison est l'opportunité idéale pour concrétiser votre projet immobilier. Pour toute information complémentaire, contactez Thibault DUPONT au 02-40-26-28-28. Nous sommes à vos côtés à chaque étape de votre projet immobilier.





