

- Prix
- 281 000 €
Maison neuve • Saint-Colomban
- Nom et prix
- Terrain à bâtir Saint-Colomban (44310) • 281 000 €
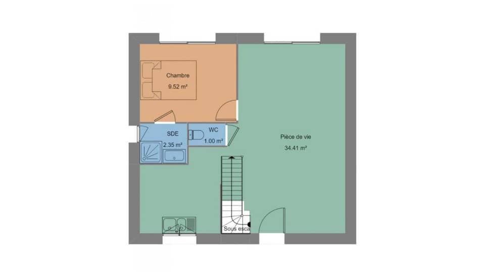
VENTE : maison de 5 pièces (89 m²) à Saint-Colomban MAISON 5 PIÈCES NEUVE - PROCHE DE NANTES En vente à 28 km de l'océan Atlantique et à deux pas de Nantes, notre agence Maisons de l'Avenir Haute-Goulaine est ravie de vous présenter à Saint-Colomban (44310), cette maison de 5 pièces de 89 m² et de 416 m² de terrain. Son intérieur est composé de quatre chambres, d'une cuisine et de deux salles de bains. C'est une maison de 2 niveaux. Elle est neuve. L'École Primaire Privée Saint Louis et l'École Primaire Publique Jacques Prévert sont implantées à moins de 10 minutes à pied. L'autoroute A83 et la nationale N844 sont accessibles à moins de 17 km. Il y a un tennis, deux commerces, une boulangerie et une supérette à proximité du bien. Elle est à vendre pour la somme de 281 000 €. Contactez notre constructeur (DUPONT Thibault : 02-40-26-28-28) pour plus de renseignements sur cette maison ou sur les modalités de vente. Maisons de l'Avenir Haute-Goulaine est là pour vous accompagner dans tous vos projets immobiliers.





