

- Prix
- 346 000 €
Maison neuve • Rouans
- Nom et prix
- Terrain à bâtir () • 346 000 €
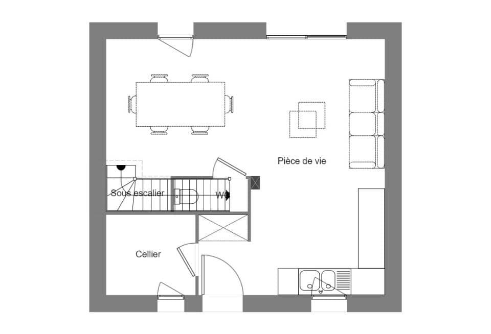
Maison F4 (12 m²) en vente à Rouans MAISON 4 PIÈCES NEUVE - PROCHE DE NANTES À vendre : à 7 km de la côte atlantique et à 22 km de Nantes, nous vous proposons à Rouans (44640), cette maison de 4 pièces de plain-pied de 12 m². Son intérieur propose trois chambres, une cuisine et une salle de bains. Cette maison est neuve. Le terrain du bien s'étend sur 372 m². Il y a l'École Primaire Privée Saint Martin et l'École Primaire Publique Jules Verne à moins de 10 minutes à pied et une structure d'accueil pour la petite enfance. Niveau transports en commun, on trouve les gares Saint-Hilaire-de-Chaléons et Sainte-Pazanne à moins de 10 minutes en voiture. L'autoroute A82 et les nationales N165, N444 et N844 sont accessibles à moins de 19 km. Il y a un tennis, un commerce, une boulangerie, une épicerie et un bureau de poste à proximité. Elle est à vendre pour la somme de 346 000 €. Contactez Thibault DUPONT (tél : 02-51-83-13-00) pour tout renseignement sur cette maison. Faites de vos projets immobiliers une réalité avec Maisons de l'Avenir Orvault.





