

- Prix
- 412 000 €
Maison neuve • Basse-Goulaine
- Nom et prix
- Terrain à bâtir () • 412 000 €
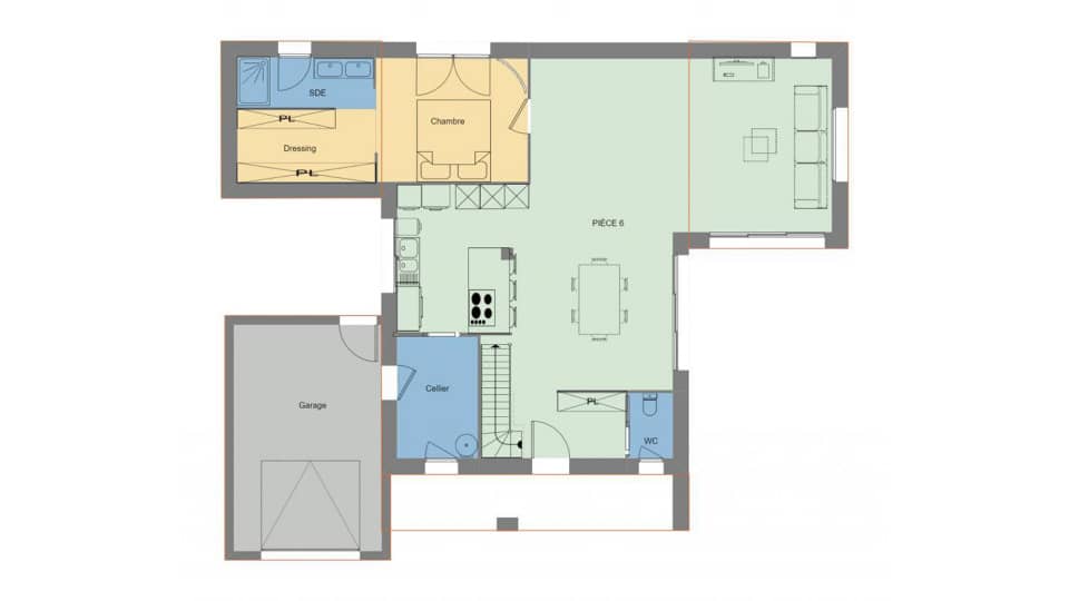
Maison F4 (120 m²) à vendre à Basse-Goulaine IDÉALEMENT SITUÉE - MAISON 4 PIÈCES NEUVE À seulement 8 km de Nantes et à 30 km de la côte Atlantique, cette maison neuve de 120 m² est idéalement située dans le quartier recherché de Basse-Goulaine (44115). Sur deux niveaux, elle se compose de trois chambres, d'une cuisine moderne et de deux salles de bains, offrant ainsi un confort optimal. Le terrain de 415 m² vous permettra de profiter d'un bel espace extérieur. Ce bien se trouve à proximité des commerces, des transports, et des espaces de loisirs. Prix de vente : 412 000 € Pour toute information supplémentaire ou pour organiser une visite, contactez Thibault DUPONT au 02-40-26-28-28. Maisons de l'Avenir Haute-Goulaine vous accompagne dans toutes vos démarches immobilières.





