

- Prix
- 297 000 €
Maison neuve • Moëlan-sur-Mer
- Nom et prix
- Terrain à bâtir Moëlan-sur-Mer (29350) • 297 000 €
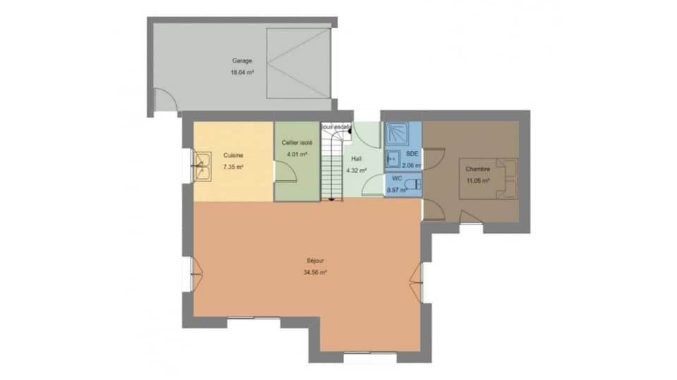
Maison de 4 pièces (89 m²) en vente à Moëlan-sur-Mer QUARTIER RECHERCH- MAISON 4 PIÈCES NEUVE En vente à 4 km de la côte atlantique et à deux pas de Lorient, Maisons de l'Avenir Lorient vous propose cette maison de 4 pièces de 89 m² située dans un quartier prisé de Moëlan-sur-Mer (29350). C'est une maison de 2 niveaux. Elle se divise en trois chambres, une cuisine et deux salles de bains. La maison est neuve. Le terrain du bien est de 355 m². Cette maison se situe dans un secteur attractif. L'École Primaire Privée Immaculée-Conception, l'École Élémentaire Publique de Moëlan-Sur-Sur et le Collège Parc-Ar-Ar-Ar Cotty sont implantés à moins de 10 minutes à pied, tout comme deux crèches. Côté transports, on trouve la gare Quimperlé à moins de 10 minutes en voiture. La nationale N165 est accessible à 7 km. Il y a un tennis, trois boulangeries, des commerces, un supermarché et un bureau de poste à quelques minutes de la maison. Ne manquez pas le marché Place de l'Eglise tous les mardis matin. Elle est à vendre pour la somme de 297 000 €. Contactez notre agence (COLLOCH Christophe : 02-97-21-63-96) pour tout renseignement sur la maison.





