

- Prix
- 283 000 €
Maison neuve • Pont-Scorff
- Nom et prix
- Terrain à bâtir Pont-Scorff (56620) • 283 000 €
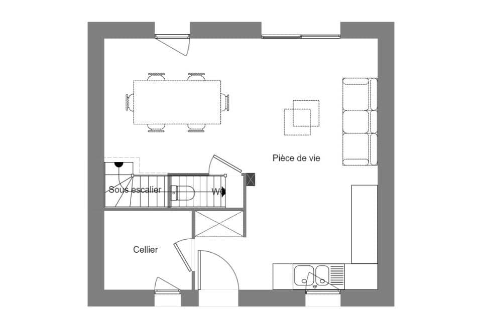
VENTE d'une maison de 5 pièces (89 m²) à Pont-Scorff IDÉALEMENT SITUÉE - MAISON 5 PIÈCES NEUVE À 14 km de la côte atlantique et à 11 km de Lorient, votre agence Maisons de l'Avenir Lorient est heureuse de vous présenter cette maison de 5 pièces de 89 m² à vendre idéalement située dans Pont-Scorff (56620). Cette maison comporte 2 niveaux. Elle inclut quatre chambres, une cuisine et deux salles de bains. La maison est neuve. Le terrain de la propriété s'étend sur 400 m². Cette maison se situe dans un quartier recherché. On trouve l'École Élémentaire Publique Marc Chagall, l'École Maternelle Publique Pierre Thomas et l'École Primaire Privée Notre-Dame du Rosaire à moins de 10 minutes à pied. Niveau transports en commun, il y a trois gares (Gestel, Lorient Bretagne Sud et Hennebont) à moins de 10 minutes en voiture. Il y a un accès à la nationale N165 à 6 km. On trouve un tennis, deux boulangeries, quatre commerces, une boucherie-charcuterie, un bureau de poste et une épicerie dans les environs. Elle est proposée à l'achat pour 283 000 €. Contactez notre agence (COLLOCH Christophe : 02-97-21-63-96) pour plus d'informations sur la propriété. Maisons de l'Avenir Lorient vous accompagne à toutes les étapes de l'achat et dans toutes vos démarches.





