

- Prix
- 273 000 €
Maison neuve • Le Mans
- Nom et prix
- Terrain à bâtir Le Mans (72000) • 273 000 €
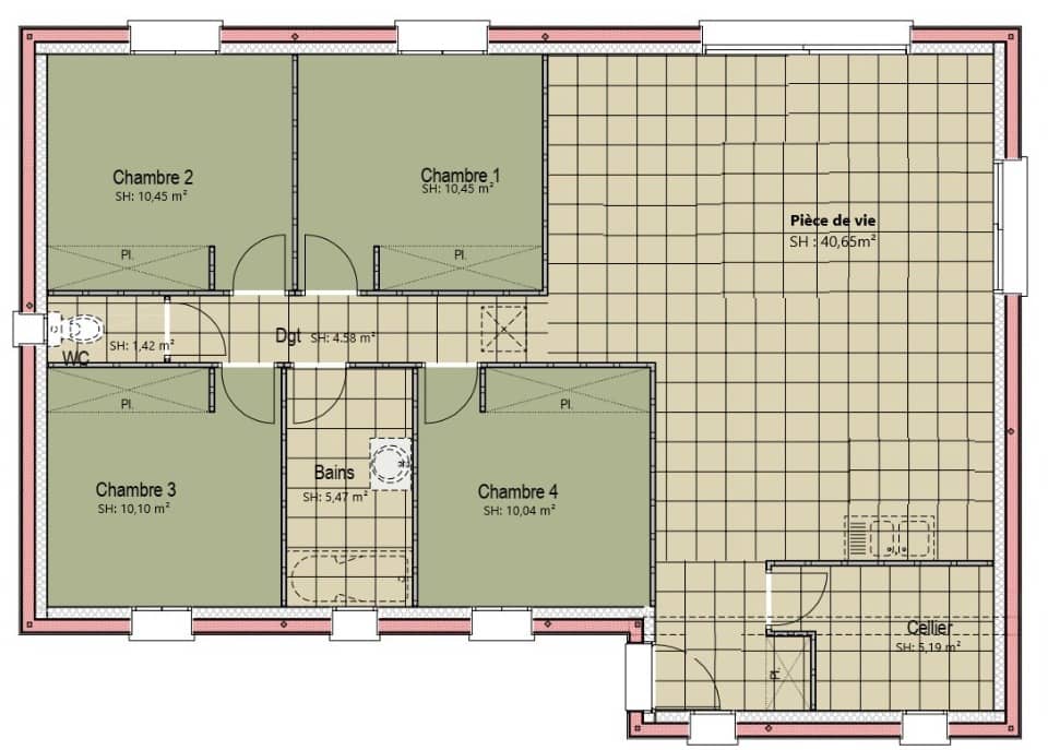
Le Mans : maison T1 (98 m²) à vendre PROCHE CENTRE-VILLE - MAISON 1 PIÈCE NEUVE En vente : proche du centre-ville du Mans (72000), nous sommes ravis de vous présenter cette maison 1 pièce de plain-pied de 98 m² et de 305 m² de terrain. Son intérieur dispose de quatre chambres, d'une cuisine et d'une salle de bains. La maison est neuve. Le lycée Institut Technologique Européen des Métiers de la Musique est implanté à moins de 10 minutes à pied, deux structures d'accueil pour les tout-petits, tout comme l'Université du Mans et l'Institut supérieur des matériaux du Mans pour le supérieur. Niveau transports, il y a trois gares (Le Mans, Neuville-sur-Sarthe et Arnage) à moins de 10 minutes en voiture. On trouve un accès à l'autoroute A11 à 3 km. On trouve deux tennis, trois boulangeries, des commerces, un supermarché et un bureau de poste à quelques minutes à peine. Son prix de vente est de 273 000 €. Prenez contact avec notre agence (HOUDAYER François : 06-23-38-26-90) pour toute question sur la propriété ou sur les modalités de vente. Concrétisez vos projets immobiliers avec Maine Construction Saint-Saturnin.





