

- Prix
- 355 000 €
Maison neuve • Montfort-le-Gesnois
- Nom et prix
- Terrain à bâtir Montfort-le-Gesnois (72450) • 355 000 €
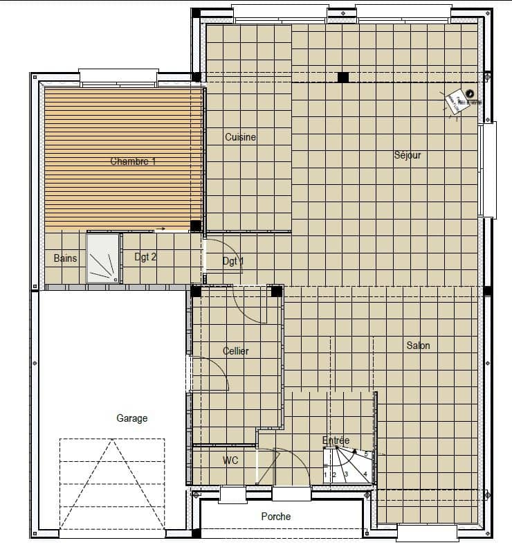
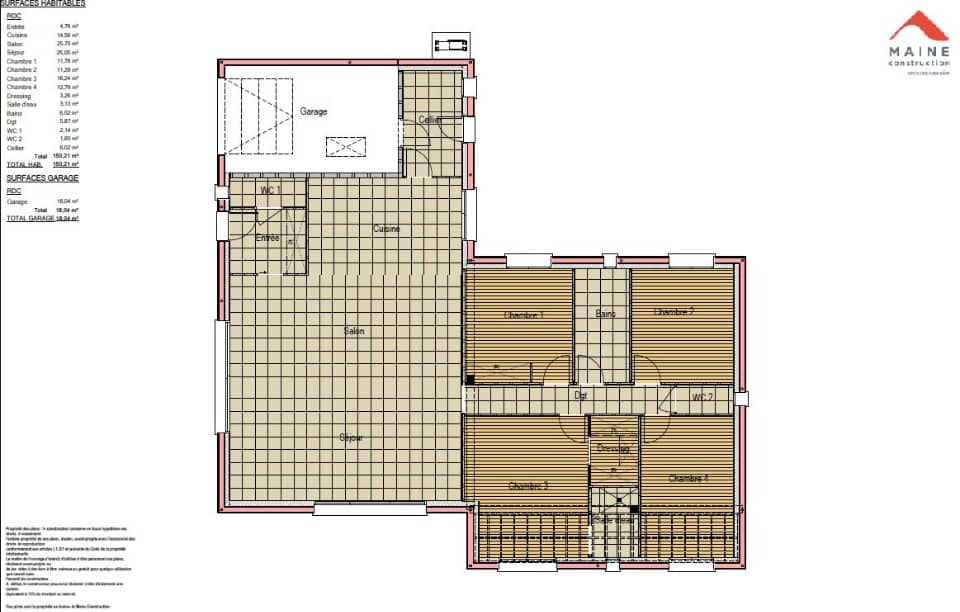
VENTE d'une maison de 5 pièces (140 m²) à Montfort-le-Gesnois IDÉALEMENT SITUÉE - MAISON 5 PIÈCES NEUVE En vente à 17 km du Mans, nous vous proposons cette maison de 5 pièces de 140 m² et de 475 m² de terrain idéalement située dans Montfort-le-Gesnois (72450). Elle inclut quatre chambres, une cuisine et deux salles de bains. C'est une maison de 2 niveaux. Elle est neuve. Cette maison se trouve dans un quartier attractif. L'École Primaire Privée Sainte Adélaide, l'École Élémentaire Publique et l'École Maternelle Publique sont implantées à moins de 10 minutes à pied. Côté transports en commun, il y a quatre gares à moins de 10 minutes en voiture. Les autoroutes A11 et A28 sont accessibles à moins de 10 km. On trouve une boulangerie, trois commerces, un supermarché et un bureau de poste dans les environs. Elle est à vendre pour la somme de 355 000 €. Prenez contact avec François HOUDAYER (06-23-38-26-90) pour obtenir de plus amples informations sur la maison, sur les modalités de vente ou sur les démarches à suivre. Maine Construction Saint-Saturnin vous accompagne dans tous vos projets immobiliers et dans toutes vos démarches.





