

- Prix
- 259 000 €
Maison neuve • Parigné-l'Évêque
- Nom et prix
- Terrain à bâtir Parigné-l'Évêque (72250) • 259 000 €
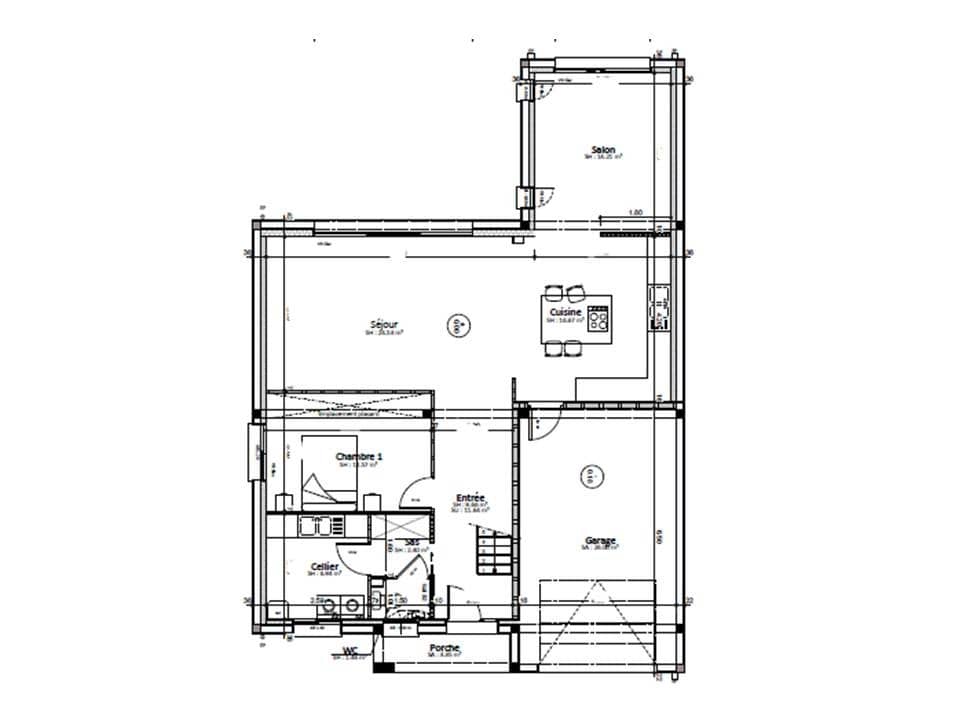
VENTE : maison F4 (105 m²) à Parigné-l'Évêque IDÉALEMENT SITUÉE - MAISON 4 PIÈCES NEUVE En vente : à quelques kilomètres du Mans, nous vous proposons cette maison de 4 pièces de plain-pied de 105 m² et de 303 m² de terrain, idéalement située dans Parigné-l'Évêque (72250). Conçue de plain-pied, elle compte trois chambres, une cuisine et deux salles de bains. La maison est neuve. Cette maison se situe dans un secteur prisé. Il y a quatre établissements scolaires à moins de 10 minutes à pied et une structure d'accueil pour la petite enfance. Niveau transports, on trouve la gare Champagné à moins de 10 minutes en voiture. L'autoroute A28 est accessible à 4 km. Il y a une bibliothèque, un tennis, trois boulangeries, trois commerces, une boucherie-charcuterie, une supérette et un bureau de poste à quelques minutes du bien. Son prix de vente est de 259 000 €. Contactez notre agence (HOUDAYER François : 06-23-38-26-90) pour toute information sur la maison, sur les modalités de vente ou sur les démarches à suivre. Maine Construction Saint-Saturnin est là pour vous accompagner à toutes les étapes de votre projet.





