

- Prix
- 289 000 €
Maison neuve • Parigné-l'Évêque
- Nom et prix
- Terrain à bâtir Parigné-l'Évêque (72250) • 289 000 €
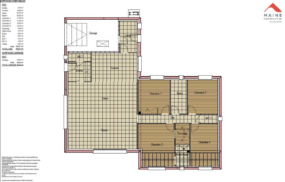
VENTE d'une maison de 4 pièces (108 m²) à Parigné-l'Évêque IDÉALEMENT SITUÉE - MAISON 4 PIÈCES NEUVE En vente : localisée à deux pas du Mans, venez découvrir, idéalement située dans Parigné-l'Évêque (72250), cette maison de 4 pièces de 108 m² et de 303 m² de terrain. Elle est composée de quatre chambres, d'une cuisine et de deux salles de bains. Cette maison possède 2 niveaux. Elle est neuve. La maison se situe dans un secteur recherché. Quatre établissements scolaires sont implantés à moins de 10 minutes à pied, tout comme une structure d'accueil pour les tout-petits. Niveau transports, il y a la gare Champagné à moins de 10 minutes en voiture. L'autoroute A28 est accessible à 4 km. On trouve une bibliothèque, un tennis, trois boulangeries, trois commerces, une supérette, un bureau de poste et une boucherie-charcuterie à proximité du bien. Son prix de vente est de 289 000 €. Contactez notre agence (HOUDAYER François : 06-23-38-26-90) pour tout renseignement sur la maison, sur les modalités de vente ou sur les démarches à suivre. Maine Construction Saint-Saturnin est là pour vous accompagner à toutes les étapes de l'achat.





