

- Prix
- 878 000 €
Maison neuve • La Celle-Saint-Cloud
- Nom et prix
- Terrain à bâtir La Celle-Saint-Cloud (78170) • 878 000 €
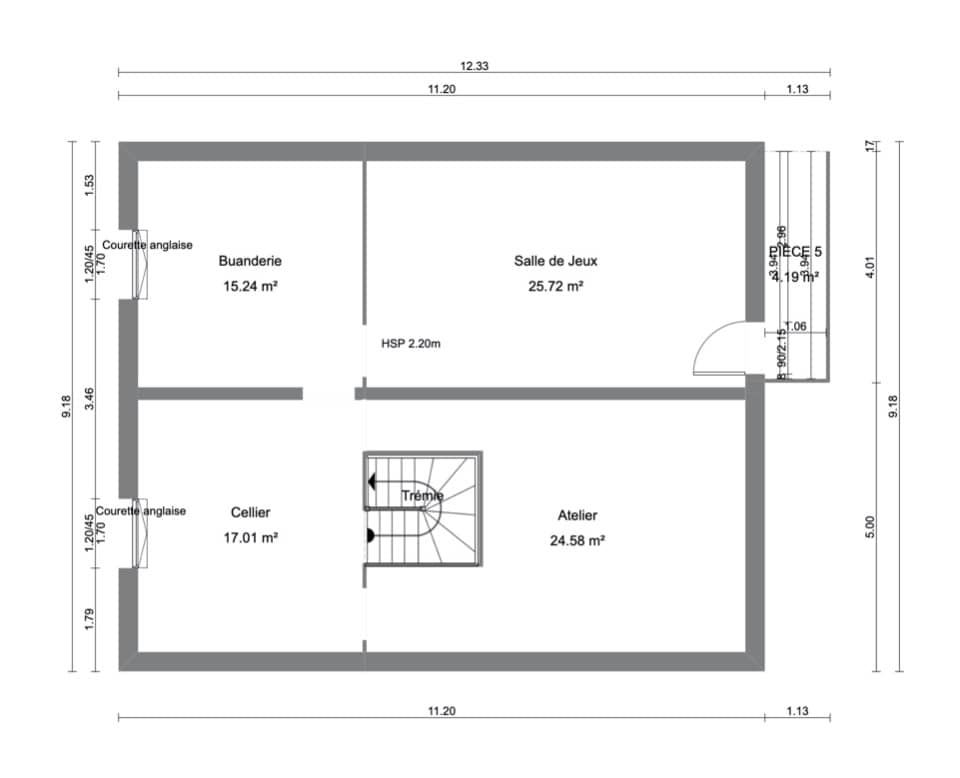
Maison T6 (110 m²) en vente à La Celle-Saint-Cloud PROCHE GARE - MAISON 6 PIÈCES NEUVE À vendre : à 315 m du Transilien L (30 min de Paris), nous sommes ravis de vous présenter cette maison de 6 pièces de 110 m² avec vue sur jardin proche de la gare de La Celle-Saint-Cloud (78170). Son intérieur est composé de quatre chambres, d'une cuisine et de deux salles de bains. Le terrain du bien s'étend sur 400 m². Il s'agit d'une maison de 2 niveaux. Elle est neuve. Des établissements scolaires (de la maternelle au lycée) se trouvent à moins de 10 minutes à pied, tout comme deux structures d'accueil pour la petite enfance. Niveau transports en commun, il y a la gare La Celle-Saint-Cloud à quelques pas du bien. On trouve une bibliothèque, un bassin de natation, des boulangeries, deux supermarchés, des commerces, un bureau de poste et trois boucheries-charcuteries dans les environs. Elle est à vendre pour la somme de 688 000 €. Contactez notre agence (LE MOEL Marc : 06-52-02-43-99) pour tout renseignement sur la maison et sur les modalités de vente. Maisons Berval Rueil-Malmaison vous accompagne à toutes les étapes de votre projet et dans tous vos projets immobiliers. Maisons BERVAL bénéficie de la Triple certification NF-HQE-PROPERMEA





