

- Prix
- 1 055 000 €
Maison neuve • Nanterre
- Nom et prix
- Terrain à bâtir Nanterre (92000) • 1 055 000 €
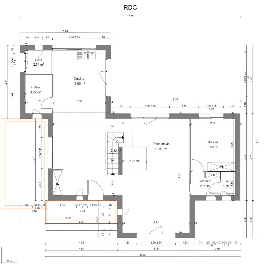
Maison de 5 pièces (156 m²) à vendre à Nanterre QUARTIER RECHERCH- MAISON 5 PIÈCES NEUVE En vente : à proximité de la station Nanterre Ville du RER A (10 min de Paris), située dans un secteur recherché de Nanterre (92000), nous vous proposons cette maison de 5 pièces de 156 m² avec vue dégagée. Son intérieur dispose de quatre chambres, d'une cuisine et de trois salles de bains. Le terrain du bien s'étend sur 700 m². Cette maison comporte 2 niveaux. Elle est neuve. Cette maison est située dans un quartier convoité. Des écoles du primaire et du secondaire se trouvent à moins de 10 minutes à pied, tout comme cinq structures d'accueil pour les tout-petits. Niveau transports, il y a la station de RER Nanterre-Ville (ligne A) à quelques pas du bien. On trouve deux tennis, une bibliothèque, un bassin de natation, des commerces, des supermarchés, des boulangeries, deux poissonneries et un bureau de poste à proximité du logement. 2 marchés animent le quartier. Son prix de vente est de 1 055 000 €. Contactez notre agence (Marc LE MOEL : 06-52-02-43-99) pour obtenir de plus amples renseignements sur la maison. Maisons Berval Rueil-Malmaison vous accompagne dans tous vos projets immobiliers et dans toutes vos démarches. Maisons BERVAL bénéficie de la Triple certification NF-HQE-PROPERMEA





