

- Prix
- 363 500 €
Maison neuve • Nantouillet (77)
- Nom et prix
- Terrain à bâtir () • 363 500 €
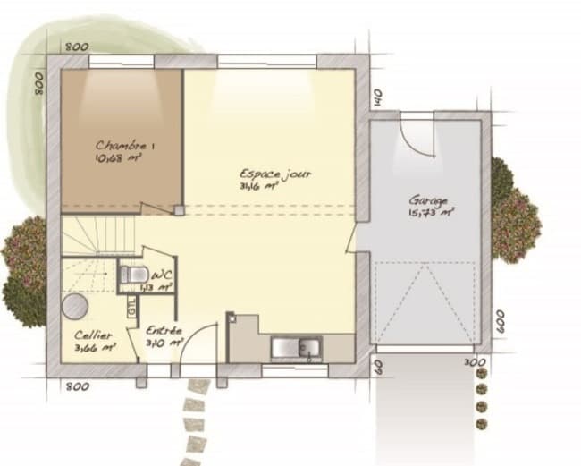
Maison T6 (98 m²) en vente à Nantouillet MAISON 6 PIÈCES NEUVE - PROCHE DE PARIS À vendre : proche du Transilien K (gare de Thieux-Nantouillet, 30 min de Paris), à Nantouillet (77230), venez découvrir cette maison de 6 pièces de 98 m². Cette maison compte 2 niveaux. Elle dispose de quatre chambres, d'une cuisine et d'une salle de bains. Cette maison est neuve. Le terrain de la propriété est de 550 m². Niveau transports en commun, il y a la ligne de RER B (Mitry-Claye) ainsi que sept gares à moins de 10 minutes en voiture. On trouve un tennis et un commerce à quelques minutes. Son prix de vente est de 363 500 €. N'hésitez pas à prendre contact avec Sébastien DARTEVELLE (tél : 06-24-63-58-60) pour tout renseignement sur cette maison ou sur les modalités de vente.











