

- Prix
- 775 000 €
Maison neuve • Le Plessis-Trévise (94)
- Nom et prix
- Terrain à bâtir () • 775 000 €
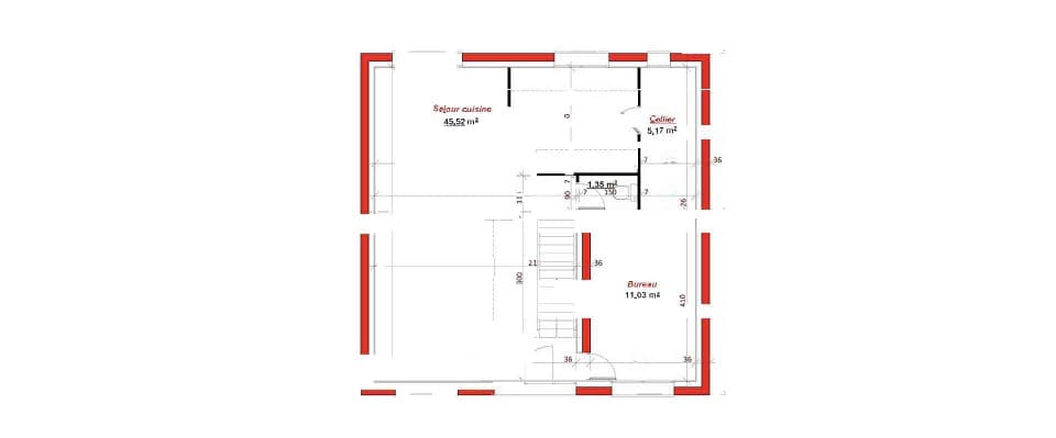
VENTE : maison de 7 pièces (152 m²) au Plessis-Trévise PROCHE DE PARIS - MAISON 7 PIÈCES NEUVE À deux pas de la station Les Yvris Noisy-le-Grand du RER E (20 min de Paris), ayez le coup de coeur pour cette maison de 7 pièces de 152 m² et de 400 m² de terrain au Plessis-Trévise (94420). Elle comporte quatre chambres, une cuisine et deux salles de bains. Cette maison compte 2 niveaux. Elle est neuve. On trouve plusieurs écoles (maternelle, élémentaire, primaire et collège) à moins de 10 minutes à pied, tout comme sept structures d'accueil pour les tout-petits. Côté transports, il y a les lignes de RER E et A ainsi que 13 gares à moins de 10 minutes en voiture. On trouve une bibliothèque, un bassin de natation, un tennis, des commerces, trois boulangeries, deux supermarchés, trois épiceries et un bureau de poste à quelques minutes de la maison. Son prix de vente est de 775 000 €. Contactez Franck THAREAU (tél : 01-48-81-08-79) pour plus d'informations sur cette maison ou sur les démarches à suivre. Maisons Berval Le Perreux-sur-Marne est là pour vous accompagner à toutes les étapes de l'achat.












